首页

  1. 首页
  2. CAD安装教程
  3. 内容

CAD2008新手自学教程61:教你画CAD立面图

cad立面图怎么画呢?立面图有哪里要进行画的,如下图有解析。

1、如下图所显示,这里就电视背景立面图了,这里是复制原始结构图进行画的。

2、如下图是背景立面图。

3、这里是餐厅和酒柜立面图。

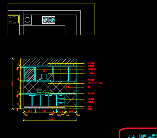
4、如下图是厨房立面图。

5、如下图是主卧衣柜立面图。

6、如下图是卧衣柜立面图。

7、如下图是鞋柜立面图。

8、如下图是主卧背景立面图。

9、如下图卫生间立面图。

10、如下图是厨房立面图c。

11、如下图是厨房立面图D,这里房间各立面图都在这里了,怎么进行详细的画呢!下一篇会说到。

————————————————————————————————————————————————————————————————————————————————————————————

 

相关推荐:

CAD2008新手自学教程45:如何画客厅吊顶图?

CAD2008新手自学教程46:如何画cad餐厅吊顶图?

CAD2008新手自学教程47:CAD各房布置图画法

CAD2008新手自学教程48:如何画CAD开关布置图

CAD2008新手自学教程49:CAD房间开关布置图画法

相关文章

回到顶部
请复制以下网址分享
CAD2008新手自学教程61:教你画CAD立面图
https://m.gc5.com/cad/cadaz/10279048.html