解决CAD打印图纸显示不全的方法如下:
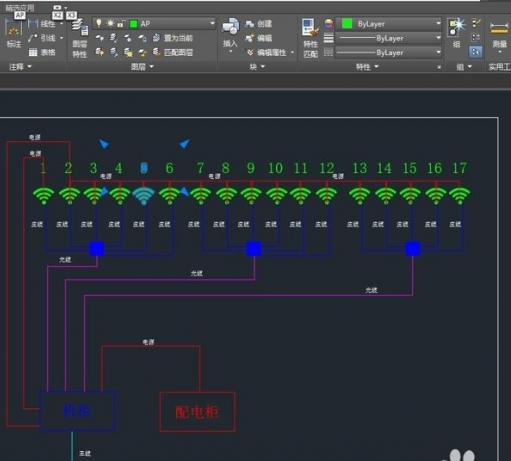
步骤一、CAD打印图纸显示不全怎么办?首先需要确定打印后不显示的内容为哪个“图层”:鼠标左键点击图纸中的“小WIFI”图标、标号,确定图层名称为“AP"

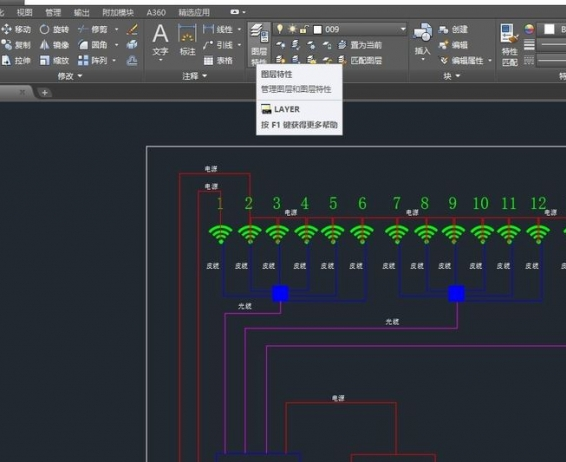
步骤二、在CAD软件里查看”图层特性“设置是否有问题:鼠标左键点击工具栏中”图层特性”图标,进行解决CAD打印图纸显示不全的问题

步骤三、CAD界面“图层特性“对话框打开后,找到需要查验的”AP"图层,移动下面滚动条查找问题,查找到CAD打印图纸显示不全问题所在,在打印列“打印机图标”设置为禁用,鼠标左键点击下“打印机图标”修改为启用打印。

步骤四、修改后点击“图层特性”对话框左上角“关闭”即可保存,接下来打印试试,CAD打印图纸显示不全的问题解决了。
