轴是支承转动零件并与之一起回转以传递运动、扭矩或弯矩的机械零件;常见的轴为圆柱形,也有少部分是方形。
本教程以轴为例,具体介绍使用中望3D如何生成包含3D模型不同视图的2D工程图,并无缝切换至中望CAD中对其进行标注。

步骤1:在中望3D中将3D模型转换为2D工程图
启动中望3D,打开事先绘制好的“轴”零件模型,进入2D工程图模块开始创建二维图纸。
首先,在“DA工具栏”中单击“2D工程图”按钮,或者在图形区域上单击鼠标右键选择相应的选项,然后,在弹出的对话框中选择合适的模板。
这里,我们使用的是定制的A3_H标准。
2D工程图模块下面,我们将具体了解2D工程图的4种视图类型。
一、标准视图
在“布局”选项卡中,选择“标准”并调出“标准”面板,然后进行不同的设置,例如选择不同视角以及X / Y比例(在这里,我们将其指定为1:2)。当然,我们也可以双击视图边界来编辑视图属性。
本节教程中,我们取消选择“显示消隐线”选项,然后选择显示缩放与显示标签,完成设置后,即可生成标准视图。
带有标签和缩放比例的标准视图二、局部剖视图
局部剖视图的创建非常简单。在中望3D中,我们只需确定边界和深度点就可以快速创建出所需要的局部剖视图。
局部剖视图三、全剖视图
在中望3D中生成完整的全剖视图,首先需选择标准视图作为基础视图。
然后,定义剖切位置并且将全剖视图放置在标准视图下方。为了能任意放置全剖视图,我们需要将“剖面方法”中的“位置”选项设置为“无”。
另外,可根据需要翻转箭头调整剖切方向。同样,在“视图属性”对话框中可修改标签前缀、格式等属性。
全剖视图四、局部视图
局部视图的创建也非常简单:首先,选择基准视图,点和注释点,以确定放大的位置和注释的位置,然后,输入“倍数”的值,以按一定的倍数放大局部视图,放置视图并调整其属性。
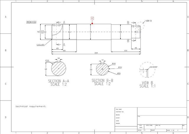
自定义局部视图的视图属性在生成零件的这些视图之后,我们就得到如下图所示的2D工程图。
包含多种视图的2D工程图接下来,我们通过“工具”选项卡中的“数据交换”功能,将该工程图导出为DWG文件,再在中望CAD中打开并进行标注。在这一过程中,中望3D和中望CAD之间的无缝兼容起到重要作用。下面,我们来看看如何在中望CAD中进一步对2D工程图进行标注。
步骤2:在中望CAD中标注2D图纸
通过前面的操作,我们已经获得了具有不同视图的2D工程图,现在,使用中望CAD打开该2D工程图,然后开始进行尺寸标注、多重引线和多行文本等注释工作。
一、 设置标注样式
大多数情况下,系统默认的标注样式并不符合实际的绘图要求。此时,我们可以使用DIMSTYLE命令调出“标注样式管理器”,然后进行更改。
例如,如果默认箭头尺寸太小,可直接输入较大的值并在管理器中预览效果。
预览自定义的标注样式二、添加标注
在中望CAD中,我们可以通过不同的方式添加各种标注,如线性、角度、直径等,操作非常便捷。
主要有如下三种标注方式:
首先,快速标注(QDIM):
这是常用的添加标注的快捷方式,它可以自动识别对象的类型,我们只需单击对象,即可为其创建对应的标注,比如快速为圆创建半径标注、为线创建线性标注。
其次,连续标注(DIMCONTINUE):
它可以帮助我们根据之前创建或选定的标注,连续创建该类型的标注。该功能可以大幅度提高添加多个相同类型标注的效率。
第三,基线标注(DIMBASELINE):
它与连续标注相似,区别是它是根据上一个或选定的标注的基线生成的。比如,基线标注能快速对一系列对象的长度进行标注。需要注意的是,在创建基线标注之前须预先设置其样式(尤其是基线间距)。
三、添加公差
创建完所有标注后,我们就可以继续调整标注和几何公差了。为图纸指定公差能够帮助制造部门更好地了解产品的形状和尺寸并将误差控制在合理范围内。
在中望CAD中,我们只需选择标注,然后就可以在“特性”面板中编辑标注公差了。如果是要创建几何公差,则可使用TOLERANCE命令调出“几何公差”对话框,然后按照具体要求确定参数。
四、添加多重引线和多行文本
创建多重引线对象之前,我们需要在“多重引线样式管理器”中修改具体的样式,例如文本高度和文本颜色。在中望CAD中,我们可以通过“文本格式”编辑器右侧的“选项”下拉菜单插入字段、符号等,十分方便。
便捷的“选项”下拉菜单同样,在创建多行文本对象之前,需先在“文本样式管理器”中修改文本样式。 然后,我们就可随意输入单个多行文本(如技术要求)。此外,我们也可以通过“文本格式”编辑器来编辑多行文本。
完成以上步骤之后,我们就得到了一张带有多种标注、多种视图的2D图纸。
最终的2D图纸小结:便捷的多视图创建功能,强大的尺寸标注功能,以及二、三维软件之间的良好兼容性,让中望3D和中望CAD能够帮助用户快速准确地将3D模型输出为2D图纸,便于后续的生产加工工作。