裁出图形中的部分制作成块。
执行方式
方法一
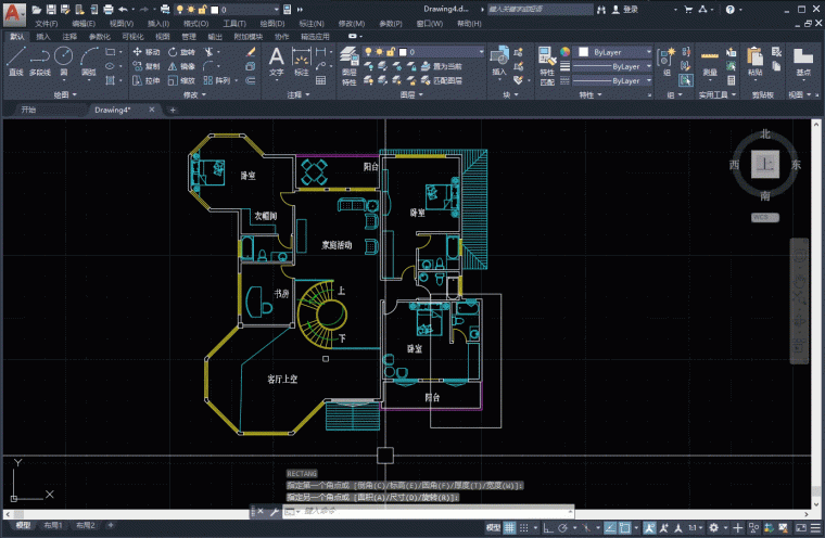
1.输入矩形命令“RECTANG”(快捷键:REC),用矩形方框把想要截取的一部分框出来。

2.再使用删减命令“TRIM”(快捷键:TR)删减矩形方框边缘的图形。

方法二
1.选择整个图形,输入命令“BLOCK”(快捷键:B)。

2.在弹出的“块定义”界面中输入块名,点击确定,图块制作完成。

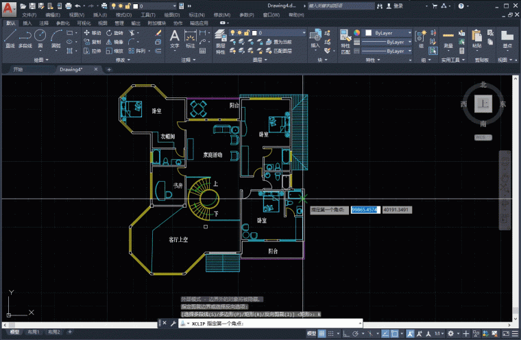
3.选择该块,再输入剪裁指定边界命令“XCLIP”(快捷键:XC),点击命令或按下空格键确定命令。

4.根据提示面板,选择“新建边界”,再选择“矩形”。

5.然后在图形中框选出想要的部分,拉伸夹点还可以调节框选的区域。
