首页
分享
首页
电气图纸
内容
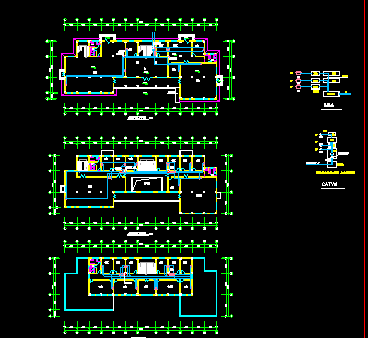
某多层办公楼强电气施工图纸
资料大小
:646 KB
运行环境
:NT/2000/XP/2003/Vista
资料语言
:简体中文
资料评级
:
授权形式
:资料共享
更新时间
:2016-05-29 14:10
发布作者
:2794901225
插件情况
:
无插件,请放心使用
文件类型
:
RAR
解压密码
:gc5.com
安全检测
:
瑞星
江民
卡巴斯基
金山
介绍: 本工程为办公楼,层高15.1米。 某多层办公楼强电气施工图纸包括底层照明平面图、二层照明平面图、夹层照明平面图、屋顶防雷平面图、基础接地平面图等
查看全文
点击进入下载
(需要
0
积分)
相关文章
某办公楼电气施工图
20150717
某办公楼电气施工图
20190913
某办公楼电气施工图
20141024
某办公楼强电系统施工图纸
20151031
某五层办公楼电气施工图纸
20160529
回到顶部
请复制以下网址分享
某多层办公楼强电气施工图纸
https://m.gc5.com/dqgc/dqtz/10871362.html