首页

  1. 首页
  2. 电气图纸
  3. 内容

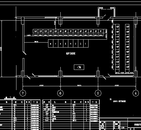
某自备电厂电气原理图及屏布置图

  • 资料大小:2.44 MB
  • 运行环境:NT/2000/XP/2003/Vista
  • 资料语言:简体中文
  • 资料评级
  • 授权形式:资料共享
  • 更新时间:2016-08-16 15:19
  • 发布作者:擦拉黑哟
  • 插件情况 无插件,请放心使用
  • 文件类型 RAR
  • 解压密码:gc5.com
  • 安全检测 瑞星 江民 卡巴斯基 金山
某自备电厂电气原理图及屏布置图
介绍: 某自备电厂电气原理图及屏布置图包括电度表屏正面布置图、同期屏布置图、中央信号屏布置图、手动同期原理图、直流系统图、电压测量原理图等
点击进入下载 (需要 0 积分)
回到顶部
请复制以下网址分享
某自备电厂电气原理图及屏布置图
https://m.gc5.com/dqgc/dqtz/10894074.html