首页
首页
电气工程
电气图纸
电气图纸
某化工厂机电控制原理施工图纸
本稿件是某化工厂机电控制原理图纸,图纸包括一次原理图,二次控制原理图,接线端子图等。
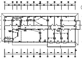
某工业厂区大门门卫室电气施工图纸
某工业厂区大门门卫室电气施工图纸包括系统图、一层平面、防雷平面图、接地平面图等
某公司厂区电气工程施工图纸
本工程为厂区内丁类仓库,耐火等级为二级,建筑面积为2000平方米,局部二层,部分混凝土,部分彩钢板屋面,室内无消火栓给水系统。
某车间电气工程施工图纸
本工程是某公司车间,共五层,局部六层,工程供电负荷等级为三类负荷,采用TN-S系统供电,建筑物防雷等级为三类。
某厂房电气工程施工图纸
本工程是某车间厂房电气图纸,设计包含高压配电系统、低压配电系统、照明设计、防雷接地等。
某输入泵站综合控制室水电施工图
某输入泵站综合控制室水电施工,设计范围包括:动力配电平面、等电位联结及接地、照明配电平面、插座配电、给排水管线布置等。
制药综合车间电气施工图
制药综合车间电气施工图包括动力配电系统图、照明配电系统图、动力平面图、照明平面图、应急及疏散指示照明平面图、吊顶内照明平面图
某工厂车间电气施工图纸
某工厂车间电气施工图纸包括一层平面图、二层平面图、屋顶层平面图、防雷平面图、总等电位平面图
某贮罐区电气施工图纸
某贮罐区电气施工图纸包括电气设备平面图、电气一次原理图、防雷平面图、控制屏、控制屏端子、扩建外线图、送料泵房照明平面图
某厂房电气施工图纸
某厂房电气施工图纸包括一层照明平面图、二层照明平面图、三层照明平面图、四層應急照明及插座平面圖、四层照明平面图
钢结构厂房电气工程施工图纸
钢结构厂房电气工程施工图纸包括一层配电平面图、屋顶防雷平面图、基础接地平面图、配电平面图、配电系统图、消防平面图、系统图
某工厂配电工程施工图纸
某工厂配电工程施工图纸包括防雷,接地、变压器高低压室布置、配电系统图、主桥架布置、动力照明制冷机房平面图及系统图。
某变电所电气设计图纸
某变电所电气设计图纸包括高压系统图、照明配电箱系统图、电缆夹层照明布置图、高压配电室。变压器室照明布置图、低压配电室照明布置图
某厂房电气设计图纸
某厂房电气设计图纸包括六层电气照明平面图、五层电气照明平面图、五层电井照明平面图、三,四层电气照明平面图、二层电气照明平面图
某工业厂房电气设计图纸
某工业厂房电气设计图纸包括屋顶弱电平面图、屋顶电气照明平面图、二~五层电气照明平面图、一层电气照明平面图、一层弱电平面图等
某配电房电气设计图纸
某配电房电气设计图纸包括10kV供电系统图、0.4KV低压配电系统图、变配电房平、剖面布置图、变配电房基础接地及照明平面布置图
某制药车间消防系统设计图
某制药车间消防系统设计图包括消防系统图、一层及一层吊顶内防火调节阀输出信号接线系统图、二层吊顶内防火调节阀输出信号接线系统图
某变电站系统图
某变电站系统图包括平面布置图、电缆沟平面图、照明平面图、基础接地平面图、屋面防雷平面图、室内接地平面图等
某农场灌溉泵站电气设计图纸
泵站电工图该泵站装机三台,单机容量:一台110kw,二台90kw,总装机390kw.变压器容量 为630KVA. 泵站电源取自于距泵站40.5m的10KV输电线路,
某消防站电气工程施工图纸
某消防站全套电气图纸,包括照明、电视、电话等设计,建筑采用TN-S接地系统,即零线与PE保安线分开敷设,PE线单独和建筑接地端子连接。
首页
上一页
下一页
尾页