首页
首页
电气工程
电气图纸
电气图纸
发电机组DRV接线系统图
3516发电机组DVR数字式调压器接线图,可供大家交流
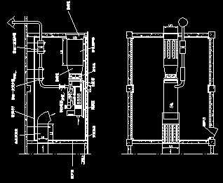
集中太阳能洗浴系统设计图
4、为太阳能系统提供的主电源需预留到太阳能智能控制器附近,单相电源总功率不小于6kw(因建设方不要求水箱辅助加热);
某化工车间1500KVA配电系统图
配电室低压配电系统图,包括氯化环合车间总配电系统图,亚硝化烃车间配电系统图,冷冻车间配电系统图,配电室进线柜PD01一、二次接线图
烘干塔自动控制原理图
烘干塔自动控制电气原理图,包括冷风机、提升机、调速机、平板机等,供各位参考
焊接车间配电系统图
变电所系统图,平面图及设计说明,设备表,风机配电及工位照明平面图,工艺设备配电平面图,配电箱及照明箱系统图,供各位参考
某服装店灯光布置与照明设计图
国外服装专卖店灯光布置与照明计算图,照明计算图,布置图等,供各位参考
某高压电容补偿结构图
某高压电容补偿结构图,包括一次原理图,端子排板,侧封板,外部图,基础图,连接板,供各位参考
防雷接地系统大样图
资料包括防雷接地做法图、高层建筑屋顶防雷与基础接地平面图、桥梁桩基和承台钢筋布置图等。供各位参考
某发电机房降噪设备布置图
发电机房降噪设备布置图,发电机组安装于二楼或以上某层平面(或楼下为敏感区域)(特殊情况采用浮筑地板),供各位参考
电器综合测试台原理图
TST-12电气综合测试台的原理图,可供大家参考
电气火灾监控系统图
为适应将来应用环境,配有标准RS232、RS485通信接口;可与楼宇其它数据采集系统进行通信组网。
市政电缆沟施工大样图
介绍了各种电缆沟的施工详图。供各位参考
公寓楼电气工程施工图纸
本工程为xxx公寓(C-22)地块项目管理用房,本工程属于一类办公建筑。结构形式为框架结构防火分类等级:防火等级二级。北京市建筑工程设计公司设计(甲级)。
电动闸阀、球阀控制原理图
电动闸阀、球阀控制原理图,plc控制图,供各位参考
某电厂柴油发电机竣工图
某电厂柴油发电机竣工图,2×300MW机组后备柴油发电机组电气原理图,供各位参考
某景观带亮化工程总平面布置图
380/220V电源由XX路路灯箱变经桥板底下穿钢管引入,亮化控制箱靠桥墩落地安装。线路敷设:风光带中亮化线路均穿钢管埋地暗敷,L5L13回路经桥板底沿桥墩引再引至灯具。
床头控制柜面板接线设计图
床头控制柜面板接线设计图,供各位参考
常用电气控制原理图
(一)双电源自动投入装置主要考虑在民用建筑中对消防用电设备供电的末端配电装置实现备用电源自动切换,容量等级最大至630A。
某厂房综合布线系统图
某厂房综合布线系统图,包括熔制车间配料工段0m,熔制车间配料工段3.8m,熔制车间配料工段9.1m,熔制车间配料工段16.8m,供各位参考
UFV-200F失步解列柜设计图
UFV-200F失步解列柜设计图,包括屏柜布置图,面板布置图,指示灯及出厂跳线说明,1N背板接线图1,左侧竖排端子接线图,右侧竖排端子接线图,供各位参考
首页
上一页
下一页
尾页