首页
首页
电气工程
电气图纸
电气图纸
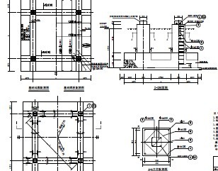
临时用电配电箱大样图
5:箱内必须设有专门的零地端子排及可靠的接地栓,选用于单相三线,三相五线制线路使用;箱底应设有进出孔及压线卡,以便于安装使用。
控护屏控制原理系统图
这是一套关于控护屏控制原理图,配电屏的设计要求很高。包括:控护屏端子排图;控护屏断路器操作原理图;控护屏继电器图;控护屏可编程原理图;
开关控制线路图
开关控制线路图,包括多种形式开关,供各位参考
某酒店客房电气系统设计图
酒店客房电气设计图,包括各种客房的照明平面图、A1G1箱系统图及插座平面图。共14张图。供各位参考
某度假村路灯安装系统图
本工程为某度假村路灯安装,内容包括:路灯自动控制原理、配电箱系统、路灯结构、热带园林景观庭园灯结构等。供各位参考
高压柜10KV二次接线系统图
高压柜10KV二次接线图,包括:PT及避雷器柜、出线柜、进线柜、消弧柜。供各位参考
某高层住宅小区有线电视及电话系统图
本资料为高层住宅小区有线电视及电话系统图。具体内容包括:高层住宅小区有线电视系统示意图、有线电视系统分配模式图、高层住宅电话系统图、
风机、水泵控制电路图
本资料为一些水泵、风机的控制电路图。供各位参考
电信电力管井设计详图
电信电力管井详图,L字井、T字井、十字井、一字井、中间头井、单盖手孔井等。供各位参考
不锈钢户外配电箱大样图
不锈钢户外箱的钣金图,以及一次接线图.开关等元器件的平面布置图。供各位参考
安防系统国家标准CAD图块
本资料为安防系统国家标准图例(CAD图块),包括电视监控;电源;控制和联网;汽车防盗报;声、光报警;振动、接近式探测;周界防护装置及防区等级符号等。
磨煤机安装详图
本资料包括ZGM95磨煤机的检修空间、平面布置、台板基础、基础平面及荷载、总装配、分离器检修平台等。供各位参考
GGD二次接线电气图
GGD二次接线电气图,包含16张图纸,供各位参考
CAD电气常用符号库
内容包括:电器符号;半导体管、电子管符号;测量仪表、灯和信号器件符号;常用符号;电力照明一般符号,变电站、所符号;电能的发生和转换符号
输电塔结构设计图
输电塔,是架空线路的支撑点。 在输电塔上架设一个回路则是单回路输电塔,在输电塔上架设两个回路则是双回路输电塔。
14个消防电气常用接线系统图
内容包括:单台排污泵动力接线,地下室车库送风机动力接线,地下室防火卷帘动力接线图,地下室设备房排烟风机动力接线,地下室设备房送风机动力接线,
某10KV高压柜电气设计图
10KV高压柜电气图。包括:配电柜、进线柜、计量柜、变压器柜等二次原理图,控制信号回路及相关的节点详图。共计17张图。
某停车场电气系统大样图
内容包括:一进一出弱电布线图、一进一出强电布线图、地感线圈敷设、停车场系统流程图。供各位参考
某体育馆I-BUS系统施工图
本图为某综合体育馆内灯光控制的系统图,系统采用I-BUS协议方案.通过集中显示,操作定时等功能对体育管内灯光实现智能,方便,节能,安全的控制。
110KV变电站线路设计图纸(PDF文件格式)
变电站新建两条单回110kV输电线路的OPGW复合架空地线(16芯),其中二十线全长5.702km,十八线全长5.693km。
首页
上一页
下一页
尾页