首页
首页
电气工程
电气图纸
电气图纸
六层板式商住楼电气全套施工图
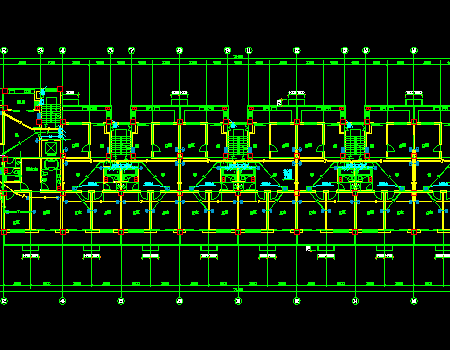
一.本工程为底商六层板式住宅,共五个单元,有地下室,一~二层为商铺,三~五层为普通住宅,六层为跃层住宅,框架结构,屋顶局部最高点标高为23.6M.
框架结构商住楼电气施工图纸
图纸包括一层电气平面图,二层电气平面图,二层照明平面图,三层电气平面图,三层照明平面图,四层照明平面图,四层插座平面图,
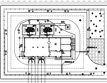
十一层住宅小区变电室设计施工图纸
图纸包括地下一层插座平面图,地下一层照明平面图,一层插座平面图,一层照明平面图,标准层插座平面图,标准层照明平面图,阁楼层电气平面图,
实验中学改造工程电施图
图纸包括设计说明 主要设备表 配电箱系统图,二层空调插座平面图 四层空调插座平面图,五层空调插座平面图等供大家参考!
输变电工程变电所一次部分图纸
图纸包括外网及场地照明平面图,主接线图,一层平面图布置图,防雷平面图,所用电系统接线图,综合楼照明配电图等供大家参考!
商务楼电气施工图
图纸包括动力及照明配电系统图一,火灾自动报警系统设计说明、系统图及材料表,地下一层动力及照明配电平面图,首层动力及照明配电平面图
十五万平商住楼强弱电系统施工图
图纸包括商业变电所10KV高压配电系统图,住宅变电所10KV高压配电系统图(1),住宅变电所10KV高压配电系统图(2),商业变电所低压配电干线图,商业变电所低压配电干线图,
商住建筑楼水电图纸
图纸包括住户配线箱接线图,二层弱电平面图,三-六层弱电平面图,一层照明平面图,二层照明平面图,三-六层照明平面图,一层给水平面图,二层给排水平面图,
宾馆电气强弱电电施图
图纸包括主要电气设备材料表、单元配电干线系统图,火灾自动接通应急照明图、服务用房照明插座平面,等电位联结示意图、户型电气详图
高层住宅楼强弱电施工图
图纸包括设计说明及图例,动力、照明竖向干线系统图,强电系统图(一),强电系统图(二),强电系统图(三),弱电系统图,自动报警系统图,
高档会所强弱电施工图
图纸包括图纸目录,电气设计说明,配电系统图,配电系统图,一层照明控制图,一层插座控制图,一层弱电控制图,二层照明控制图,二层插座控制图,
水闸结构设计图
水闸结构设计图,供大家参考!
图书馆强弱电施工图
图纸包括主要设备及材料表,高压配电系统图,低压配电系统图(一),低压配电系统图(二),低压垂直配电干线图,变电所设备布置平面图 变电所电缆沟布置平面图,
脱硫区域电缆通道布置及安装图
图纸包括本卷册目录,设计说明,设备材料表, 脱硫区域电缆通道布置及安装图, 脱硫区域电缆通道安装剖面图,配电间电缆通道设施布置与安装图等供大家参考!
外国语学校地下室电气施工图
图纸包括地下室一区动力平面图,地下室一区动力平面图,地下室三区动力平面图等供大家参考!
卫生院门诊强弱电施工图
图纸包括设计说明,配电箱系统图 ,弱电系统图 ,主要设备材料表,一层照明平面图,二层照明平面图,一层插座平面图,二层插座平面图,接地平面图,防雷平面图,一层弱电平面图,二层弱电平面图等供大家参考!
文化馆图书馆会议系统工程图纸
图纸包括图纸目录、图例及主要设备材料表,会议系统设计说明,多功能厅音视频系统平面布置图,多功能厅音频系统图,多功能厅视频系统图,
文化中心大楼装修工程强弱电施工图
文化中心大楼装修工程强弱电施工图,供大家参考!
文化中心文化站智能化工程图纸
图纸包括材料设备清单(一),材料设备清单(二),综合布线及计算机网络系统图,视频监控及防盗报警系统图,有线电视及公共广播系统图,
五层商住楼强弱电施工图
图纸包括一层配电干线平面图,弱电系统图,配电系统图2、配电干线图,配电系统图1,三~五层照明平面图,一层插座平面图,二层插座平面图,
首页
上一页
下一页
尾页