(1)平面注写方式
平面注写方式包括集中标柱与原位标注两部分。
集中标注——表达梁的通用数值。
原位标注——表达梁的特殊数值。
当集中标注的某项数值不适用于梁的某部位时,则将该项数值进行原位标柱,施工时原位标柱取值优先。
1)集中标注
集中标注的形式如图所示。

①梁截面标准规则
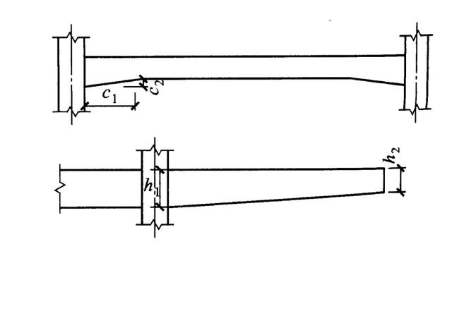
当梁为等截面时,用b×h表示。当为加腋梁时用b×h Yc1×c2表示,其中c1为腋长,c2为腋高。当有悬挑梁且根部和端部不同时,用斜线分割根部与端部的高度值,即b×h1/h2。

②箍筋的标柱规则
当箍筋分为加密区和非加密区时,用斜线“/”分隔,肢数写在括号内。当抗震结构中的框架梁采用不同的箍筋间距和肢数时,也可用斜线“/”将其分隔开表示。
例如 13φ8@150/200(4),表示梁的两端各有13个φ8箍筋,间距为150;梁跨中箍的间距为200,全部为4肢箍。又如 13φ8@150(4)/150(2),表示梁两端各有13个φ8的4肢箍,间距150;梁跨中为φ8双肢箍箍筋间距为150。
③梁上部通长筋和架立筋的标注规则
在梁上部既有通长钢筋又有架立筋时,用“+”号相联标柱,并将通长筋写在“+”号前面,架立筋写在“+”号后面并加括号。例如,当梁配置四肢箍时, 用2φ22+(2φ12)表示,其中2φ22为通长筋,(2φ12)为架立钢筋。
图附.2.11上部、下部纵筋均为通长筋的表示

若梁上部仅有架立筋无通长钢筋,则全部写入括号内。当梁的上部纵向钢筋和下部纵向钢筋均为通长筋,且多数跨配筋相同,此时可将标准写在梁的下侧,并用分号“;”隔开。图附.2.11表示梁上部为3Φ22通长筋,梁下部为4Φ25通长筋。
④梁侧钢筋的标注规则。
梁侧钢筋分为构造配筋和受扭纵筋。当梁的腹板高度≥450mm时,就需要配置构造梁侧钢筋,构造钢筋用大写字母G打头,接着标注梁两侧的总配筋量,且对称配置。例如G4φ12,表示在梁的每侧各配2φ12构造钢筋。
受扭纵筋用N打头。例如N6φ18,表示梁的每侧配置3φ18的纵向受扭钢筋。
⑤梁顶高差的标柱规则
梁顶高差是指梁顶与相应的结构层的高度差值,当梁顶与相应的结构层标高一致时,则不标此项,若梁顶与结
构层存在高差时,者将高差值标入括号内。例如(-0.05)表示梁顶低于结构层0.05m;若为(0.05)表示梁顶高于结构层0.05m。
2)梁原位标注法
①梁支座上部纵筋
该部位标注包括梁上部的所有纵筋,即包括通长筋。
当梁上部纵筋不止一排时用斜线“/”将各排纵筋从上自下分开 。如 6φ25(4/2),表示梁支座的上一排钢筋为4φ25,下排钢筋为2φ25。
当同排纵筋有两种直径时,用加号“+”将两种规格的纵筋相联表示,并将角部钢筋写在“+”号前面。例如2φ25+2φ22 表示2φ25放在角部,2φ22放在顶梁的中部。
当梁上部支座两边的纵向筋规格不同时,须在支座两边分别标注;当梁上部支座两边纵筋相同时,可仅在支座一边标注,另一边可省略标注。
②梁下部纵向钢筋
当梁下部纵向钢筋多于一排时,用“/”号将各排纵向钢筋自下而上分开。 例如梁下部注写为6φ25(2/4)表示梁下部纵向钢筋为两排,上排为2φ25,下排为4φ25,全部钢筋伸入支座。
当梁下部纵向钢筋不全部伸入支座时,将梁支座下部纵筋减少的数量写在括号内。例如梁下部注写为6φ25 2(2)/4 表示梁下部为双排配筋,其中上排2φ25不伸入支座,下排4φ25全部伸入支座。
当梁上部和下部均为通长钢筋,而在集中标注时已经注明,则不需在梁下部重复做原位标注。
③附加箍筋和吊筋的标注
当多数附加箍筋和吊筋相同时,可在梁平法施工图上统一注明,否则直接画在平面图的主梁上,用引出线标注总配筋数(附加箍筋的肢数注在括号内)
④当在梁上集中标注的内容不适用于某跨时,则采用原位标注的方法标注此跨内容,施工时原位标注优先采用
(2)梁的截面注写方式
梁的截面注写方式是在按层绘制的梁平面布置图上分别在不同编号的梁中各选择一根梁用剖面号引出配筋图,并在剖面上注写截面尺寸和配筋的具体数值表示梁的施工图。采用这种表达方式,适用于表达异形截面梁的尺寸与配筋,或平面图上梁距较密的情况。
