首页
首页
结构图纸
厂房结构
厂房结构
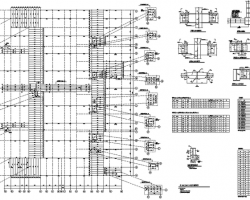
钢结构厂房施工图纸
钢结构厂房图纸包括建筑施工图、结构施工图、暖通施工图、给排水施工图、电气施工图等。供大家参考!
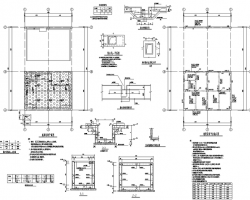
厂房结构施工图
包括柱网及柱间支撑布置图、柱脚板详图、锚栓布置图、锚栓详图、吊车梁布置图、制动系统详图、刚架详图等
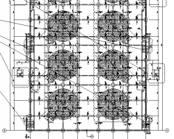
厂房设计
包括桩位及基础平面图、底层平面图、屋顶平面图、锚栓布置图、下层吊车梁布置图、屋面结构布置图、屋面檩条布置图、轴墙梁布置图等
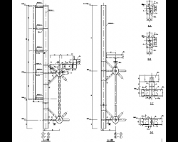
钢结构车间设计图纸
包括轴线刚架施工详图、平面图、立面图、剖面图、吊车梁节点图、吊车梁施工图、刚架立面图、结构平面布置图、抗风柱施工图
水池及水窖图集
⒉埋石砼砖砌拱水窖有施工简单、窖体稳定性好、质量可靠,使用寿命长,取土提水、清淤方便等优点。缺点是施工工艺复杂,需专业队伍组织施工。
供水发电洞钢筋设计图
相邻搭接部位应错开1m¥以上。5¥.箱涵段与隧洞渐变段、闸室段之间均设置止水,止水结构详见止水大样图
电站总体布置图
此文件为电站总体布置图,包括电站总体平面布置图、水电站厂房纵剖面图、水电站厂房平面布置图、水电站厂房横剖面图。供各位参考
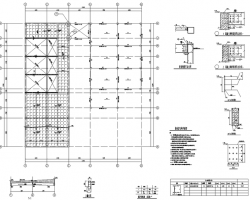
厂房结构施工图
包括厂房尾水底板下层钢筋图、厂房尾水管墩墙及尾水顶板下层钢筋图、厂房上游底板下层钢筋布置图、墩墙及尾水顶板上层钢筋图(2/2)集水井钢筋图
某厂房布置图
此文件为某厂房布置图,包括厂房二层平面图,厂房首层平面图,厂房屋顶平面图,剖面图,主厂房平面图等,供各位参考
某水库厂房设计图
某水库厂房设计图,厂房初设枢纽布置图,厂房开挖剖面图,厂房开挖剖面图(初设阶段),厂房位置图2,新厂房地形图(分解).供各位参考
某水电站水轮机层平面图
此文件为某水电站水轮机层平面图,供各位参考
某水电站枢纽总布置图剖面图
此文件为某水电站枢纽总布置图剖面图,包括拦河坝上游立视图,机组横剖面图,机组纵剖面图,拦河坝下游立视图等,供各位参考
某水电站二汛三枯门机平面布置图
1.本图为二汛和三枯期间厂房混凝土施工机械平面布置图,尾水部位门机吊运不到的砼全部由HB60泵送到仓号浇筑。
某水泵房平面图
此文件为某水泵房平面图,供各位参考
某电站泄洪闸设计平面图
1.本图尺寸以mm计,高程以m计。2.主轨、反轨及底坎埋件焊接后整理纵向弯曲度不超过±3mm,扭曲度不超过2mm,角板与轨面不垂直度不超过2mm
某电站砼系统总平面布置图
2、本图360m、365m平台根据2003年5月15日测地形图进行设计,其余根据一期场平设计边线布置。(图中绿线为6月17日测地形图)
厂房横剖面布置图
1.本套图为XX水电站可行性研究阶段厂房综合布置图,2.有关专业设备布置,详见其专业布置图.3.图中尺寸除高程以米计外,余以厘米为单位
冲砂闸及厂房墩顶桥梁设计图
1、本图钢筋直径以毫米计,其余尺寸以厘米计。2、砼保护层厚2.5厘米,砼标号为C25。3、钢筋焊接长度为10d(单面焊),或为5d(双面焊)。
水电站压力岔管设计图
此文件为水电站压力岔管设计图,1. 本图为压力钢管各镇墩平面布置图。2. 图中尺寸单位除高程为m,其余均为mm。3. 图中钢管直径均以管内径计算,管壁厚度为10mm
某电站厂房布置图
此文件为某电站厂房布置图,包括厂房平面图,厂房横剖面图,厂房纵剖面图,供各位参考
下一页
尾页