首页
首页
结构图纸
钢结构
钢结构
某铁路站台钢结构雨棚设计图纸
某铁路站台钢结构雨棚设计图纸包括柱位平面、屋顶平面、虹吸雨水管埋柱平面、剖面、挂接触网处典型剖面、节点详图、雨棚柱预留孔示意图,供参考!
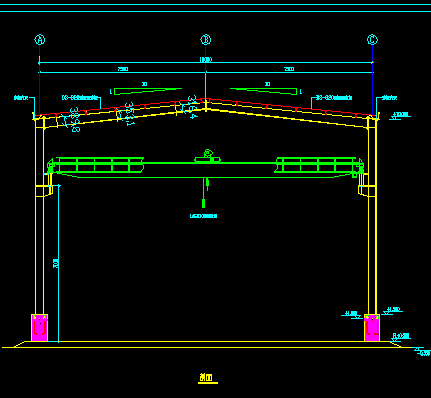
某铁路站台结构施工图纸
某铁路站台结构施工图纸包括立面布置图、上弦腹杆布置图、立面布置图、斜腹杆平面布置图、斜腹杆平面布置图,供参考!
某厂房钢结构工程设计图纸
某厂房钢结构工程设计图纸包括屋顶平面布置图、吊顶平面图、立面图、剖面图,供参考!
某双楼房钢结构设计图纸
某双楼房钢结构设计图纸包括屋顶平面布置图、钢柱平面布置图、中间榀架剖面图、边缘榀架剖面图、夹层梁布置图、屋面结构布置图、屋面檩条布置图、轴柱间支撑布置图,供参考!
厂房钢结构施工图纸
厂房钢结构施工图纸包括钢柱平面布置图、屋面结构布置图、屋面檩条布置图、柱间支撑布置图、墙面檩条布置图、吊车平面布置图、底层平面布置图、屋顶平面布置图、立面图,供参考!
某厂房钢结构施工图纸
某厂房钢结构施工图纸包括底层平面布置图、屋顶平面布置图、轴墙面彩板布置图、中间榀刚架剖面图、边缘榀刚架剖面图、钢柱平面布置图、屋面结构布置图、屋面檩条布置图、吊车梁平面布置图、轴柱间支撑布置图,供参考!
某厂房钢结构施工图纸
某厂房钢结构施工图纸包括钢柱平面布置图、屋面结构布置图、屋面檩条布置图、吊车平面布置图、轴柱间支撑布置图、轴剖面图、轴刚架图、抗风柱与钢梁GL连接详图,供参考!
厂房钢结构施工图纸
厂房钢结构施工图纸包括钢柱平面布置图、屋面结构布置图、屋面檩条布置图、柱间支撑布置图、吊车平面布置图、屋顶平面布置图、立面图、剖面图,供参考!
某厂房钢结构屋顶施工图纸
某厂房钢结构屋顶施工图纸包括钢柱平面布置图、屋面结构布置图、屋面檩条布置图、柱间支撑布置图、吊车平面布置图、屋顶平面布置图、立面图、剖面图,供参考!
某厂房钢结构施工图纸
某厂房钢结构施工图纸钢柱平面布置图、屋面结构布置图、屋面檩条布置图、柱间支撑布置图、吊车平面布置图、屋顶平面布置图、立面图、剖面图,供参考!
某厂房钢结构施工图纸
某厂房钢结构施工图纸包括钢柱平面布置图、屋面结构布置图、屋面檩条布置图、 吊车平面布置图、柱间支撑布置图、墙面檩条布置图、轴剖面图、屋顶平面布置图、轴立面图,供参考!
厂房钢结构施工图纸
厂房钢结构施工图纸包括底层平面图、屋顶平面图、各轴立面图、剖面图、基础锚栓布置图、基础锚栓详图、钢柱平面布置图、屋面结构布置图、吊车梁平面布置图、各轴结构立面图、屋面檩条布置图、各轴墙面檩条布置图,供参考!
厂房钢结构施工图纸
厂房钢结构施工图纸包括底层平面图、屋顶平面图、各轴墙面立面图、剖面图、钢柱平面布置图、屋面结构布置图、 吊车梁平面布置图、屋面檩条布置图、轴结构立面图、各轴墙面檩条布置图、轴刚架图,供参考!
厂房钢结构施工图纸
厂房钢结构施工图纸包括屋顶平面图、 剖面图、钢柱平面布置图、屋面结构布置图、 吊车梁平面布置图、轴结构立面图、屋面檩条布置图,供参考!
某厂房钢结构施工图纸
某厂房钢结构施工图纸包括底层平面图、 屋顶平面图、各轴立面图、钢柱平面布置图、屋面结构布置图、吊车梁平面布置图、屋面檩条布置图、各轴结构立面图、各轴墙面檩条布置图,供参考!
某厂房钢结构施工图纸
某厂房施工图纸包括屋顶平面图、各轴立面图、 剖面图、 钢柱平面布置图、屋面结构布置图、 屋面檩条布置图、各轴结构立面图、各轴墙面檩条布置图、轴刚架图,供参考!
厂房钢结构施工图纸
厂房钢结构施工图纸钢结构设计总说明 、底层平面图、屋顶平面图、剖面图、钢柱平面布置图、屋面结构布置图、 吊车梁平面布置图、 屋面檩条布置图、各轴结构立面图、轴刚架图,供参考!
某厂房扩建结构施工图
某厂房扩建结构施工图包括钢结构设计总说明 、底层平面图、屋顶平面图、各轴立面图、钢柱平面布置图、吊车梁平面布置图、屋面檩条布置图、各轴墙面檩条布置图、各轴刚架图,供参考!
商业楼钢结构工程图纸
商业铺钢结构工程图纸 包括基础平面布置图、基础大样图、柱平面布置图、地梁平面布置图、平屋面层及斜屋面梁板钢筋图、楼梯配筋表,供参考!
框架结构综合楼施工图纸
框架结构综合楼施工图纸包括基础平面图、 梁配筋平面图、电梯机房结构图、楼梯结构图,供参考!
首页
上一页
下一页
尾页