首页
首页
结构图纸
混凝土结构
混凝土结构
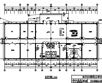
某住宅楼结构施工图
2)本工程基础形式为筏板基础,基础安全等级为二级,以振冲碎石桩加固后的复合地基作为持力层,振冲碎石桩桩径不小于800、桩距不大于1.3m,宜按等边三角形排列;
某高层剪力墙住宅结构施工图
包括结构专业施工说明,工程桩平面布置图,地下室底板配筋图,三层及三层以下墙,柱配筋详图,四层及四层以下墙,柱配筋详图,首层结构平面图,首层梁板配筋图等,供各位参考
某底框住宅楼结构设计图
某底框住宅楼结构设计图,包括一层剪力墙布置平面图,一层柱平面图,基础平面布置图,有桩帽井桩剖面图,二层板配筋图,二层梁配筋图,三层结构平面图等,供各位参考
某多层住宅楼结构施工图
本工程为底框结构,建筑层数为八层,建筑高度为24.900m.本工程结构安全等级为二级,地震设防烈度为六度,底部框架抗震等级二级.设计使用年限为T=50年.建筑物抗震类别为丙类。
某医院建筑结构施工图
某医院建筑结构施工图包括承台布置及配筋图、基础顶面~标高4.470柱位及配筋图、标高4.470~标高8.970柱位及配筋图、基础顶面梁平法施工图
某十八层住宅楼结构施工图
某十八层住宅楼结构施工图包括一层墙柱平面图、二层墙柱平面图、三层墙柱平面图、四~八层墙柱平面图、九~十四层墙柱平面图、十五~十七层墙柱平面图
某6层教学楼结构设计图
某6层教学楼结构设计图包括混凝土结构设计说明、型钢混凝土结构设计说明、桩位(基础)平面布置图、桩详图、独立基础详图、地梁平法施工图、锚栓布置图
综合楼砖混结构施工图
综合楼砖混结构施工图包括墙下条基布置图、3.265层模板图、屋面板配筋图、二层楼梯平面图等
某厂房结构施工图
某厂房结构施工图包括基础平面布置图、柱网平面布置图、一层结构平面布置图、一层梁平法施工图、二层结构平面布置图、二层梁平法施工图、三层结构平面布置图
化粪池结构施工图
化粪池结构施工图包括平面图、筒顶与侧壁焊接示意图、管罩大样图、配筋图、化粪池盖板平面布置图等
某高层住宅楼结构施工图
某高层住宅楼结构施工图包括基坑开挖平面、基础结构及梁配筋平面、基础板配筋平面、屋面梁配筋平面、二十六~三十三层梁配筋平面、二层墙柱平面等
高层办公楼框架结构施工图
高层办公楼框架结构施工图包括箱形基础配筋图、手算楼梯配筋图、顶层结构平面布置图等
某住宅楼结构施工图纸
某住宅楼结构施工图纸包括地下车库与主楼连接处框架柱示意、基础底板平法配筋图、主体与地下车库基础底板钢筋搭接示意、基础顶~-0.100标高墙体平法施工图、
某高层办公楼建筑施工图
某办公楼,建筑用地面积:约700 ,其红线范围能满足该要求。建筑面积:6000±200 。层数:地上11层。层高:一层层高4.5m,标准层层高3.3m。结构形式:钢筋混凝土框架结构。
外墙详图
外墙详图,供大家参考!
住宅区地下车库施工图
住宅区地下车库施工图包括基础平面布置图、基础顶~-1.500剪力墙、柱平法施工图、楼梯大样图、坡道大样图、车库顶板网梁楼盖模板施工图、车库顶板网梁楼盖横向肋梁配筋图等
某高层住宅楼结构施工图
某高层住宅楼结构施工图包括桩布置图、基础平面布置图、-5.400~-2.695剪力墙布置平面图、-2.695~-0.110剪力墙布置平面图、-2.695~-0.110剪力墙边缘构件
单向板肋梁楼盖配筋图
单向板肋梁楼盖配筋图包括板的配筋图、次梁的配筋图
某三层招待所框架结构施工图
某三层招待所框架结构施工图包括基础平面布置图、三层楼面结构平面布置图、屋顶梁配筋平面图、坡屋面结构配筋图、坡屋面梁配筋图、三层楼面梁配筋图、屋顶结构平面布置图
某15层住宅楼纯剪力墙结构施工图
抗震设防类别:丙类,抗震设防烈度:8度,设计基本地震加速度值0.20g;设计地震分组:第二组,设计特征周期0.40s,基本雪压:0.80kN/m,基本风压:0.60kN/m。
首页
上一页
下一页
尾页