首页
首页
结构图纸
混凝土结构
混凝土结构
某混凝土结构设计图
某混凝土结构设计图包括板平面布置及配筋图、横向梁立面及钢筋分离图、纵向梁立面及钢筋分离图
某医院建筑施工图
某医院建筑施工图包括平面图、立面图、剖面图等。供大家参考!
小区住宅楼结构施工图
小区住宅楼结构施工图包括原始框架图、梁柱图、家居平面图、地面布置图、吊顶布置图、水路布置图、开关布置图、弱电布置图等
空泵室建筑结构施工图
空泵室建筑结构施工图包括石子煤真空泵室±0.000m层平面图、屋顶平面图\'石子煤真空泵室I-I剖面图、立面图、石子煤真空泵室结构图、石子煤真空泵室结构图
商业楼结构施工图
商业楼结构施工图包括桩平面布置图、基础梁平面布置图、基础详图、基础顶~-20.400柱布置图、基础顶~-20.400柱详图、负二层结构平面图、负一层结构平面图
某办公楼结构施工图
某办公楼结构施工图包括基坑开挖及桩基平面布置图、基础平面图、基础详图、人防(核6常6级)平面布置图、人防构件详图 、地下一层(结构平面图、一层(F)结构平面图等
某医院结构施工图
某医院结构施工图包括主楼基础梁配筋图、地下室底板配筋图、主楼基础梁配筋图、一层结构平面图、设备层结构平面图、十二层结构平面图、一层梁配筋图
住宅区结构施工图纸
住宅区结构施工图纸包括地下室底板结构布置图、分区示意图、地下室基础梁平面布置图、商铺-0.600处基础梁平面布置图、承台平面布置图、桩平面布置图等
住宅楼结构施工图
住宅楼结构施工图包括A座12.470梁平法施工图、A座62.400梁平法施工图、A座8.300~12.470框架柱、剪力墙布置图等
某厂房结构施工图纸
某厂房结构施工图纸包括桩位平面布置图、承台平面布置图、基础梁平面布置图、承台详图、坡道及卸货平台平面布置图、地脚锚栓平面布置图、柱平面布置图、厂房内自承重墙体结构布置图等
某住宅楼结构施工图
某住宅楼结构施工图包括基础平面布置图、基础大样图、基础梁结构平面图、基础梁层板结构平面布置图、基础顶~-5.630剪力墙、柱结构平面布置图
购物中心轴剪力墙详图
购物中心轴剪力墙详图,供大家参考!
某物流中心结构施工图
某物流中心结构施工图包括è3é~ê11Ë轴柱平面布置图、二层结构平面布置图、轴三层结构平面布置图、三层框架梁平法施工图、三层次梁平法施工图等
厂房结构施工图纸
厂房结构施工图纸包括锚栓平面布置图、基础平面布置图、结构平面布置图、D/E轴柱间支撑立面图、结构平面布置图、檩条平面布置图、J轴线墙架布置图等
教学楼结构施工图
教学楼结构施工图包括基础结构平面、基础配筋平面、屋面结构平面、坡屋面结构平面、二层结构平面、屋面框架柱平面、屋面板配筋平面等
某半钢结构车间施工图
某半钢结构车间施工图包括桩位平面布置图、承台布置图、地梁配筋平面图、附房部分柱平法施工图、附房部分板配筋图、车间部分柱平面布置图、柱间支撑及吊车梁平面布置图
某工业园办公楼结构施工图纸
某工业园办公楼结构施工图纸包括负一层平面图、一层平面图、二层平面图、三、五、七层平面图、八层平面图、屋顶平面图、卫生间及放大平面图、门窗表及门窗大样(一)、节点大样等
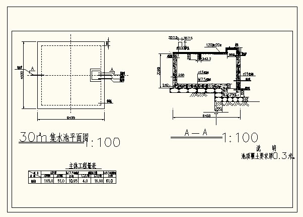
集雨池典型设计图
集雨池典型设计图,容量为60立方,属于地下集雨池,主要是布设在绿化下面,上面设计抽水泵把积蓄的雨水抽出,用于绿化或者洒道路,节约用水
厂房结构施工图纸
厂房结构施工图纸包括基础平法施工图、柱平面布置图、柱配筋图、标高-0.030m梁平法施工图、标高5.670m梁平法施工图、标准层板平法施工图、标高23.700m板平法施工图
商住楼结构施工图
商住楼结构施工图包括基础平面布置图、基础详图、标准层结构平面布置图、标准层顶板配筋图、标准层顶梁配筋图、标准层柱配筋图等
首页
上一页
下一页
尾页