首页
首页
结构图纸
混凝土结构
混凝土结构
某综合楼预埋件部分深化设计图
包括A楼幕墙钢结构柱脚锚栓平面布置图,1/A轴墙面支撑埋件布置图,3/A轴墙面支撑埋件布置图,二层、夹二层埋件平面布置图,三层、夹三层埋件平面布置图等,供各位参考
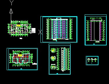
某住宅楼建筑施工图
某住宅楼建筑施工图包括平面图、立面图、剖面图等。供大家参考!
某教学楼工程结构设计图
包括某幼儿园建筑结构图,基础平面布置图,柱平面布置图,二层梁配筋平面图,二层结构平面图,三层梁配筋平面图,三层结构平面图,四层梁配筋平面图等,供各位参考
某幼儿园建筑结构图
某幼儿园建筑结构图,包括结构施工说明,图纸目录,平法施工图,梁平法施工图,屋面梁平法施工图,屋面板配筋施工图等,供各位参考
某综合楼工程结构施工图
5.独立基础插筋锚入基础内长度均需满足抗震锚固长度,且基础中插筋与箍筋共同组成骨架竖立于基础底板的钢筋网上并做≥100mm的水平段.供各位参考
某住宅楼结构施工图
设计一层为车库和草房,二到六层为住宅,屋顶为坡屋面,本工程为砖混结构,建筑安全等级为二级,耐火等级为二级,屋面防水等级为三级,抗震设防裂度为7度,供各位参考
某住宅楼结构施工图
1.本工程合理使用年限为50年.本工为6度抗震设防,抗震类别为丙类,场地土2类.基本风压0.30KN/M,地面粗糙度B类.本工程砌体施工控制等级为B级,基础设计等级为丙级.
某钢结构展厅设计图
某钢结构展厅设计图,包括夹层结构平面图,屋面刚性细杆及下弦水平支撑平面布置图,桩定位图,柱位图,门式刚架构件示意图等,供各位参考
某幼儿园工程结构施工图
某幼儿园工程结构施工图,本工程建筑结构的安全等级为二级,设计使用年限50年,混凝土结构的耐久性为一类,砌体结构施工质量控制等级为B级;供各位参考
某幼儿园结构设计图
设计建筑面积4790平方米,建筑占地面积为2700平方米,地上主体三层,局部四层。一至三层层高均为3.6米,四层3.2米,建筑物总高度17.70米。
某综合楼结构施工图
本工程±0.000为室内地面标高,相当的绝对标高见建筑总图专业图纸。上部结构体系:现浇钢筋混凝土异型柱框架结构。本工程的结构设计使用年限为50年。供各位参考
某住宅楼工程结构施工图
某住宅楼工程结构施工图,本工程地下0层,地上6层,室内外高差450mm,建筑物高差mm,建筑物高度(室外地面至主要屋面板的板顶);16.50m。供各位参考
某住宅楼工程结构施工图
设防属丙类,抗震设防烈度为6度,设计基本地震加速度0.05g,设计地震分组为第一组,抗震等级为框架四级,建筑地基基础设计等级为乙级,桩基安全等级为二级。
某住宅楼工程结构施工图
包括二层楼板配筋平面图,三层楼板配筋平面图,四层楼板配筋平面图,五层楼板配筋平面图,屋面板配筋平面图,一层结构布置平面图,基础梁平面整体配筋图等
某医院综合楼结构施工图
包括底层柱配筋平面图,二层柱配筋平面图,三层柱配筋平面图,四层柱配筋平面图,五层柱配筋平面图,六层柱配筋平面图,八层柱配筋平面图等,供各位参考
某医院门诊楼结构施工图
包括2层梁钢筋图,2层板钢筋图,6层梁钢筋图,3层梁钢筋图,3层板钢筋图,6层板钢筋图,4层梁钢筋图,4层板钢筋图,基础平面图,5层板钢筋图等,供各位参考
某会所工程结构施工图
本工程为3层钢筋砼框架结构,建筑结构安全等级为二级。震设防属丙类,抗震设防烈度为6度,设计基本地震加速度0.05g,设计地震分组为第一组,抗震等级为框架四级。
某办公楼工程结构施工图
建筑面积为6351.95m,本建筑结构形式为框架结构,无地下室,地上五层,总高为19.95m.楼板均采用现浇钢筋混凝土楼板,基础形式为钢筋混凝土独立柱基础。供各位参考
某沿街公建结构施工图
某沿街公建结构施工图,本工程为二类建筑,耐火等级为二级。合理使用年限为五十年.本工程屋面防水等级为III级,耐用年限为十年.供各位参考
某厂房工程结构设计图
1.按重要性分类,本工程安全等级为二级。2.本工程主体结构设计使用年限为50年。3.本工程建筑抗震设防等级为三级,抗震设防烈度为7度,设计基本加速度为0.15g;
首页
上一页
下一页
尾页