首页
首页
结构图纸
混凝土结构
混凝土结构
某12层商品房结构施工图
某12层商品房结构施工图包括基础结构平面图、地下室剪力墙平法施工图、一层板配筋平面图、一层梁配筋平面图、二层梁配筋平面图、二层板配筋平面图
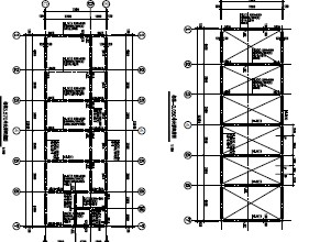
某高层建筑结构设计图
某高层建筑结构设计图包括基础结构筏板配筋图、剪力墙平法施工图、一层顶梁结构配筋平面图、剪力墙平法施工图、一层顶板结构平面图、二层顶板结构平面图
某办公楼结构工程施工图
某办公楼结构工程施工图包括基础平面布置及配筋图、地沟平面布置图、基础梁配筋图、基顶~3.3柱平面布置图、3.30~15.7柱平面布置图、柱平法配筋列表
五层办公楼结构施工图
五层办公楼结构施工图包括基础平面布置、配筋图、标高3.900梁平面布置及配筋图、标高3.900~11.100板平面布置及配筋图、标高7.500梁平面布置及配筋图
除尘器间除渣栈桥基础施工图
除尘器间除渣栈桥基础施工图包括除尘器基础平面布置及配筋图、除尘器基础平面布置及配筋图、除渣栈桥结构布置图、除渣栈桥、渣仓、灰仓基础平面图等
某发电厂建筑结构施工图
某发电厂建筑结构施工图包括滚轴支座详图、落煤坑施工图、栈桥平、剖面图、栈桥梁、板配筋图、转运站平、立、剖面图、转运站梁、板配筋图、栈桥基础施工图等
某加油站施工图
某加油站施工图包括站房基础平面布置图、站房框架柱配盘图、站房板配筋图、店房楼梯配筋图
某厕所施工图
某厕所施工图包括基础平面图、屋面梁平法施工图、屋顶结构平面配筋图
节点大样图
一些节点大样图汇总,包括坡屋面,剪力墙,栏板,雨棚,女儿墙,砌体等常用大样图。
电动伸缩门自主设计图
电动伸缩门自主设计图包括正立面图、轨道基础平面布置图、轨道平面布置图、平面图等
水源井井房设计图纸
水源井泵房设计图纸,包括屋顶配筋等
Z9-30SQF型化粪池施工图
Z9-30SQF型化粪池施工图,供大家参考!
某水解池设计图
某水解池设计图包括电力平面布置图、启闭机控制原理图、电动阀门控制原理图、潜水电机控制原理图等
高层住宅建筑施工图
高层住宅建筑施工图包括柱配筋图、梁平法施工图、板平法施工图等
工期进度表(cad图纸)
工期进度表,供各位参考
3层小办公楼结构施工图
本工程为钢筋混凝土框架结构,耐久年限50年,主体层数四层,本工程抗震设防烈度为7度,(0.15g)抗震设防类别为丙类建筑抗震等级框架为三级,设计基本地震加速度值0.15g
砖砌化粪池(异性)设计图
本工程抗震设防烈度为7度,抗震设防类别为丙类建筑,设计基本地震加速度值0.15g,设计地震分组为第一组,结构安全等级为二级,地基基础设计等级为丙级。
某住宅楼框筒结构施工图
现浇板底筋伸入支座的锚固长度不应小于5d,且应伸至梁中心线,底筋及板厚相同的相邻板跨间的底筋可连通设置,除注明外,现浇板双向配筋时,短跨方向的主筋放在长跨方向主筋的外侧
某小区住宅楼结构施工图
某小区住宅楼结构施工图,采用墩基时,应有试墩报告或深层平板荷载试验报告或基岩荷载板试验报告(若试墩试验尚未完成,墩基础图不得用于实际施工)。
典型自然驳岸做法
典型自然驳岸做法,本文为dwg格式,供大家参考!
首页
上一页
下一页
尾页