首页
首页
结构图纸
混凝土结构
混凝土结构
某古建工程结构设计图
本工程的混凝土结构的环境类别:室内为一类,±0.000以下及室外为二(a)类–结构设计合理使用年限为100年–,
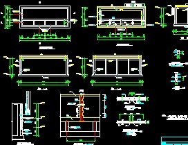
配水井结构详图
配水井结构详图包括配水井顶部结构平面布置图、配水井底部结构平面布置图、构造柱同保温墙拉筋示意图筋、构造柱立面示意图、井壁平面配筋图等
某宾馆工程结构施工图(英文版)
某宾馆工程结构施工图(英文版),供各位参考
某住宅楼工程结构施工图
某住宅楼工程结构施工图,屋顶为坡屋面,本工程为砖混结构,建筑安全等级为二级,耐火等级为二级,屋面防水等级为三级,抗震设防裂度为7度,供各位参考
某住宅楼结构施工图
1.本工程合理使用年限为50年.本工为6度抗震设防,抗震类别为丙类,场地土2类.基本风压0.30KN/M,地面粗糙度B类.本工程砌体施工控制等级为B级,基础设计等级为丙级.
某住宅楼工程结构施工图
包括一层梁平面整体配筋图,车道梁平面整体配筋图,门厅梁平面整体配筋图,二层梁平面整体配筋图,三层梁平面整体配筋图,四层梁平面整体配筋图等,供各位参考
某住宅楼工程结构施工图
开挖基槽时,如遇坟坑,枯井,人防工事,软弱土层等异常情况,应通知勘察与设计单位处理.基槽开挖完毕,应进行钎探,然后会同勘察设计单位验槽.供各位参考
某幼儿园工程结构施工图
本工程体形系数0.31,按照省民用建筑节能标准设计.为砖混结构,楼面为现浇密肋井字梁,本工程建筑分类:三类.主体耐久年限:二级(50年),本工程耐火等级为二级.
某幼儿园工程结构设计图
本工程为三类建筑,七度抗震设防,本工程耐久年限年限为50年,本项工程的安全等级为二级,砌体施工质量控制等级为B级。
某异型柱框架结构综合楼结构图
本工程地上6层,室内外高差300mm,建筑物高度(室外地面至主要屋面板的板顶):20.4m。上部结构体系:现浇钢筋混凝土异型柱框架结构。本工程的结构设计使用年限为50年。
某住宅楼工程结构施工图
室内外高差450mm,建筑物高度(室外地面至主要屋面板的板顶);16.50m。上部结构体系:现浇钢筋混凝土框架。本工程在设计考虑的环境类别中的结构设计使用年限为50年。
异形柱多层砌体结构住宅施工图
建筑物抗震设防属丙类,抗震设防烈度为6度,设计基本地震加速度0.05g,设计地震分组为第一组,抗震等级为框架四级,建筑地基基础设计等级为乙级,桩基安全等级为二级.
异形框架柱结构综合楼施工图
包括二层楼板配筋平面图,三层楼板配筋平面图,四层楼板配筋平面图,五层楼板配筋平面图,六层楼板配筋平面图,隔热层楼板配筋平面图,屋面板配筋平面图等,供各位参考
某医院病房楼工程结构施工图
包括底层柱配筋平面图,二层柱配筋平面图,三层柱配筋平面图,四层柱配筋平面图,五层柱配筋平面图,六层柱配筋平面图,七层柱配筋平面图,八层柱配筋平面图等
某医院住院楼结构施工图
建筑结构安全等级2级.抗震设防烈度6度.抗震等级:框架4级,本工程耐火等级为2级.本工程采用天然地基,根据地质钻探资料,基础埋置在粘土层,其承载力特征值为160KPa.
某休闲会所结构设计图
按《GB50011-2001》建筑物抗震设防属丙类,抗震设防烈度为6度,设计基本地震加速度0.05g,设计地震分组为第一组,抗震等级为框架四级。供各位参考
某办公楼工程结构施工图
结构设计使用年限为50年;建筑物安全等级二级,地基基础设计等级为丙级;本工程按湿陷性黄土地区建筑规范分类为丙类建筑,±0.000标高相当于绝对高程1093.08m。
某沿街公建结构施工图
本工程为二类建筑,耐火等级为二级.合理使用年限为五十年.本工程屋面防水等级为III级,耐用年限为十年.本工程总长为132.24米,总宽为19.94米,总高度为22.15米,共六层.
某框架结构教学楼施工图
某框架结构教学楼施工图,包括基础梁,柱配筋图,桩配筋图,楼梯五层平面图等,供各位参考
某宿舍楼工程结构施工图
包括桩承台平面布置图,桩头处插筋锚固大样,梁配筋平面图例,屋面层梁配筋图,一层地梁配筋图,二层梁配筋图,三层梁配筋图,四,五层梁配筋图等,供各位参考
首页
上一页
下一页
尾页