一、工程概况与危大工程识别

二、编制依据
三、施工计划
进度计划:单台电梯基础施工工期控制在5天内,包括土方开挖、钢筋绑扎、预埋件安装、混凝土浇筑及养护。各基础按施工流水段依次展开。 材料计划:钢筋、商品混凝土提前报备,预埋地脚螺栓由电梯安装单位提供并复核。每台基础留置2组混凝土试块。 设备计划:水准仪、经纬仪、插入式振动器、平板振动器、电焊机等。
四、施工工艺
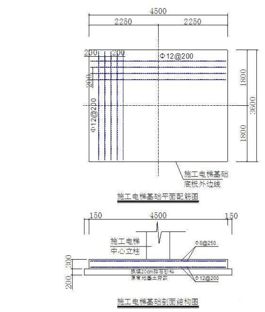
技术参数:基础尺寸mm×mm×mm,顶面标高m,表面平整度≤1/1000。预埋地脚螺栓中心距偏差±2mm,标高偏差+20mm、0mm。 工艺流程:

3. 关键工序控制:
五、验收要求
1. 验收标准:
2. 验收程序:
3. 验收人员:施工单位项目技术负责人、质量员、安全员;监理单位专业监理工程师;安装单位项目负责人。
六、安全保证措施
施工安全:基坑开挖按1:0.5放坡,坑边1m内严禁堆土。夜间施工照明充足,电缆线架空布置。振捣手穿绝缘鞋戴手套,开关箱设漏电保护器。 文明施工:混凝土罐车进场禁止鸣笛,施工垃圾及时清理,夜间施工合理布置照明减少扰民。 质量控制:严格执行三检制,基底验槽、钢筋隐蔽、预埋件复核等关键工序须经监理验收。同条件试块与基础同条件养护,作为拆模及安装依据。 
七、应急处置
应急组织:成立以项目经理为组长的应急小组,明确通信联络方式并在现场公示。 应急物资:配备钢管、千斤顶、水泵、急救包、灭火器等,存放于指定位置。 应急措施:发生坍塌立即疏散人员,封锁现场组织救援;发生触电先切断电源再施救;发生火灾用灭火器材扑救并报警。 医院路线:规划两条最近医院路线,现场张贴示意图。
八、计算书要点
九、附图
施工电梯基础平面布置图 基础配筋及预埋件定位图 基础排水布置图