首页
分享
首页
别墅图纸
内容
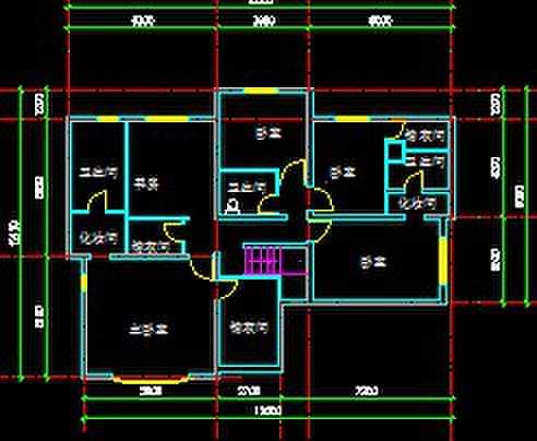
户型别墅建筑施工图
资料大小
:51.4 KB
运行环境
:NT/2000/XP/2003/Vista
资料语言
:简体中文
资料评级
:
授权形式
:资料共享
更新时间
:2013-11-14 10:28
发布作者
:叶落秋天
插件情况
:
无插件,请放心使用
文件类型
:
RAR
解压密码
:gc5.com
安全检测
:
瑞星
江民
卡巴斯基
金山
介绍: 户型别墅建筑施工图,供大家参考!
查看全文
点击进入下载
(需要
0
积分)
相关文章
某别墅建筑施工图
20131114
某别墅建筑施工图
20130517
某别墅建筑施工图
20140103
某别墅建筑施工图
20131115
某别墅建筑施工图
20130615
回到顶部
请复制以下网址分享
户型别墅建筑施工图
https://m.gc5.com/jzgc/jztz/bieshu/10578422.html