首页
分享
首页
别墅图纸
内容
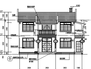
204平米二层别墅设计图(PDF格式)
资料大小
:8.57 MB
运行环境
:NT/2000/XP/2003/Vista
资料语言
:简体中文
资料评级
:
授权形式
:资料共享
更新时间
:2016-05-27 13:45
发布作者
:刘开心00
插件情况
:
无插件,请放心使用
文件类型
:
RAR
解压密码
:gc5.com
安全检测
:
瑞星
江民
卡巴斯基
金山
介绍: 204平米二层别墅设计图(PDF),包括平面图、立面图、剖面图、屋顶平面图,基础结构,结构平面,给水、排水系统图,配电平面图,配电系统图、防雷及接地平面等,供参考!
查看全文
点击进入下载
(需要
0
积分)
相关文章
二层别墅方案设计图
20130517
某二层别墅空调设计图
20160124
二层别墅设计图
20130628
二层别墅电气设计图
20170430
二层别墅装修设计图纸
20160428
回到顶部
请复制以下网址分享
204平米二层别墅设计图(PDF格式)
https://m.gc5.com/jzgc/jztz/bieshu/10870749.html