首页

  1. 首页
  2. 别墅图纸
  3. 内容

150平米三层单家独院式别墅设计图

  • 资料大小:2.07 MB
  • 运行环境:NT/2000/XP/2003/Vista
  • 资料语言:简体中文
  • 资料评级
  • 授权形式:资料共享
  • 更新时间:2016-08-19 16:57
  • 发布作者:大头大头大头
  • 插件情况 无插件,请放心使用
  • 文件类型 RAR
  • 解压密码:gc5.com
  • 安全检测 瑞星 江民 卡巴斯基 金山
150平米三层单家独院式别墅设计图
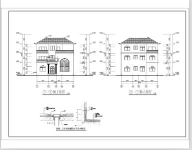
介绍: 户型为单家独院式,占地面积150平方米,总建筑面积410平方米,总高度12.6米。一层设有客厅、餐厅、卧室、卫生间、佣人房、洗衣房;二层设有主卧室、起居室、卧室、卫生间、阳台;三层设有健身房、露台、阳台、卧室、卫生间及休息平台; 本户型平面布置紧凑,采光通风良好,坡顶造型简洁,美观大方,色彩清新淡雅,具有浓郁的田园气息。 图纸包括:平面图,立面图,剖面图,屋顶平面图等,供参考!
点击进入下载 (需要 0 积分)

相关文章

回到顶部
请复制以下网址分享
150平米三层单家独院式别墅设计图
https://m.gc5.com/jzgc/jztz/bieshu/10895860.html