首页
首页
建筑图纸
别墅图纸
别墅图纸
三层砖混结构独栋私人别墅建筑施工图纸
三层砖混结构独栋私人别墅建筑施工图纸包括总平面图、底层平面图、一层平面图、屋面平面图、三层平面图、节点、窗大样、节点大样、楼梯详图、基础平面布置图
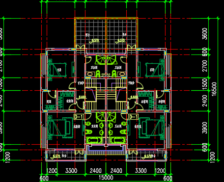
三层联排及双拼式别墅建筑施工图纸
三层联排及双拼式别墅建筑施工图纸包括地下一层平面图、一层平面图、屋顶层平面图、立面图、剖面图、双拼C1型 地下一层平面图、双拼C1型一层平面图等
贴瓦屋面高层单公寓建筑施工图
贴瓦屋面高层单公寓建筑施工图包括标准间层平面图、豪华房层平面图、侧立面图、立面图、五层平面图、四层平面图、三层平面图、二层平面图、一层平面图、剖面图
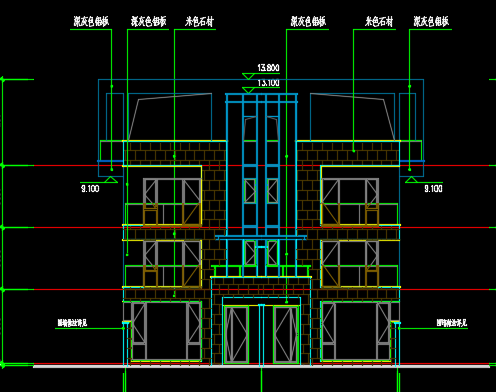
三层联排式别墅建筑剖面图
三层联排式别墅建筑剖面图,供大家参考!
三层石材外墙联排式别墅建筑施工图纸
此图在8月14日提图基础上做一层和二层层高调整,最终图纸以设计院施工图为准现以4联排为例做调整原则,其他联排同理
双拼别墅及小高层住宅建筑施工图纸
双拼别墅及小高层住宅建筑施工图纸包括屋顶层平面图、闷顶层平面图、三层平面图、首层平面图、地下一层平面图
三层阶梯状别墅建筑施工图纸(含多套方案)
三层阶梯状别墅建筑施工图纸(含多套方案)包括平面图、屋顶平面图、立面图、剖面图等,供大家参考!
120平方米三层坡屋顶联排式别墅建筑施工图纸
120平方米三层坡屋顶联排式别墅建筑施工图纸包括架空层平面图、一层平面图、二层平面图、三层平面图、屋顶平面图、剖面图、轴西立面图
两层花园式别墅建筑施工图(含效果图)
两层花园式别墅建筑施工图(含效果图)包括平面图、立面图、剖面图等,供大家参考!
三层双拼别墅建筑设计图纸
三层双拼别墅建筑设计图纸包括剖面图、东立面图、屋顶平面图、三层平面图、二层平面图、一层平面图、地下一层平面图、户型平面图
三层别墅建筑设计图纸
三层别墅建筑设计图纸包括一层平面图、二层平面图、三层平面图、屋面墙体平面图、屋面平面图、南立面图、北立面图、剖面图等
某别墅区施工图纸(含建筑结构水电暖)
某两层别墅施工图纸(含建筑结构水电暖)包括地下室平面图、一层平面图、二层平面图、屋顶平面图、立面图、楼梯详图、厨卫详图、门窗详图、栏杆详图 ,金属窗罩详图
90平方米二层别墅建筑设计图纸
90平方米二层别墅建筑设计图纸包括一层平面图、二层平面图、三层平面图、屋顶平面图、立面图、剖面图
三层私人住宅建筑施工图纸
三层私人住宅建筑施工图纸包括首层平面图、夹层平面图、二~三层平面图、天面平面图、立面图、剖面图梯室顶平面图、阳台侧立面图等
三层联排别墅建筑施工图纸
该建筑建筑高度11.30m,住宅建筑面积1183.4m ,其中车库层建筑面积181m,阁楼建筑面积88m。
三层别墅全套建筑结构施工图纸
三层别墅全套建筑结构施工图纸包括首层平面图、二层平面图、楼梯扶手大样图、二层楼梯平面图、三层平面图、阁楼层平面图、屋顶平面图、阁楼层板配筋图、二层楼梯板配筋图等
三层别墅建筑施工图纸
三层别墅建筑施工图纸包括平面图、立面图、剖面图等,供大家参考!
二层别墅施工图纸
工程总用地面积47386.6平方米.本工程由18栋单体别墅组成,总建筑面积30956.77平方米,其中地上建筑面积20019.32平方米,地下建筑面积 10937.45平方米.
三层农村住宅建筑设计图纸
农村住宅楼的设计图纸,三层砖混结构,采用条形基础,因为首层中间8m跨径,设计了两根横梁,下面采用了独立基础
13套别墅平面布置图纸
13套别墅平面布置图纸包括二层平面图、三层平面图、首层平面图、屋顶平面图,供大家参考!
首页
上一页
下一页
尾页