首页
首页
建筑图纸
别墅图纸
别墅图纸
二层独栋别墅建筑平面设计图纸
二层独栋别墅建筑平面设计图纸包括一层平面图、二层平面图,供各位参考!
三层独栋及双拼别墅建筑设计图纸(4套)
三层独栋及双拼别墅建筑设计图纸包括立面图、剖面图、一层平面图、二层平面图、三层平面图、屋顶平面图等,供大家参考!
三层别墅建筑平面设计图纸
三层别墅建筑平面设计图纸包括一层平面图、二层平面图、三层平面图,供大家参考!
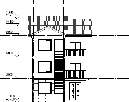
某三层独栋别墅建筑设计图纸
某三层独栋别墅建筑设计图纸包括立面图、剖面图、一层平面图、二层平面图、三层平面图、屋顶平面图等
二层带地下层别墅建筑设计图纸
二层带地下层别墅建筑设计图纸包括立面图、剖面图、一层平面图、二层平面图、屋顶平面图、地下室平面图等,供大家参考!
某两层独栋别墅建筑施工图纸
某两层独栋别墅建筑施工图纸包括立面图、剖面图、一层平面图、二层平面图、屋顶平面图等
三层独栋别墅建筑施工图纸
三层独栋别墅建筑施工图纸包括立面图、剖面图、一层平面图、二层平面图、三层平面图、屋顶平面图等
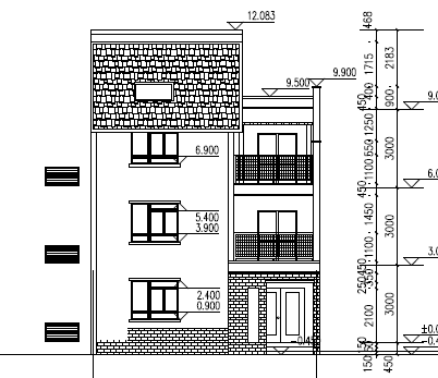
三层独栋别墅建筑立面设计图纸
三层独栋别墅建筑立面设计图纸,设计精美,布局合理,不错的图纸,供大家参考!
三层带地下层独栋别墅建筑施工图纸
三层带地下层独栋别墅建筑施工图纸包括立面图、剖面图、一层平面图、二层平面图、三层平面图、屋顶平面图、地下室平面图、门窗表、门窗详图、楼梯大样图、节点大样图等
258平米二层别墅建筑设计图纸
258平米二层别墅建筑设计图纸包括立面图、剖面图、一层平面图、二层平面图、屋顶平面图等,供大家参考!
6套二层独栋别墅建筑施工图纸
6套二层独栋别墅建筑施工图纸,本图纸内含6套别墅图纸,包括立面图、剖面图、一层平面图、二层平面图、屋顶平面图、门窗表、门窗详图、楼梯大样图、节点大样图等
某三层坡屋顶私人别墅建筑施工图纸
某三层坡屋顶私人别墅建筑施工图纸包括立面图、剖面图、一层平面图、二层平面图、三层平面图、屋顶平面图、门窗表、节点大样图等
2套三层框架结构联排别墅建筑施工图纸
2套三层框架结构联排别墅建筑施工图纸,本图纸内含2套别墅图纸,包括立面图、剖面图、一层平面图、二层平面图、三层平面图、屋顶平面图、门窗表、楼梯大样图、节点大样图、设计说明等
三层带半地下室砖混结构别墅建筑施工图纸
三层带半地下室砖混结构别墅建筑施工图纸包括立面图、剖面图、一层平面图、二层平面图、三层平面图、屋顶平面图、地下室平面图、门窗表、门窗详图、楼梯大样图、节点大样图
二层山地独栋别墅建筑设计图纸
二层山地独栋别墅建筑设计图纸包括立面图、剖面图、一层平面图、二层平面图、屋顶平面图等
二层带架空层山地别墅建筑施工图纸
二层带架空层山地别墅建筑施工图纸包括立面图、剖面图、一层平面图、二层平面图、屋顶平面图、地下室平面图、架空层平面图、门窗表、门窗详图、楼梯大样图、节点大样图等
三层坡屋顶私人别墅建筑施工图纸
三层坡屋顶私人别墅建筑施工图纸包括立面图、剖面图、一层平面图、二层平面图、三层平面图、屋顶平面图、门窗表、门窗详图、楼梯大样图、节点大样图等
三层两户联体别墅建筑施工图纸
三层两户联体别墅建筑施工图纸包括立面图、剖面图、一层平面图、二层平面图、三层平面图、屋顶平面图、门窗表、门窗详图、楼梯大样图、节点大样图、设计说明等
二层带夹层、阁楼别墅建筑施工图纸
二层带夹层、阁楼别墅建筑施工图纸包括立面图、剖面图、一层平面图、二层平面图、屋顶平面图、阁楼平面图、夹层平面图、门窗表、门窗详图、楼梯大样图、节点大样图、设计说明等
二层带阁楼私人别墅建筑施工图纸
二层带阁楼私人别墅建筑施工图纸包括立面图、剖面图、一层平面图、二层平面图、屋顶平面图、阁楼平面图等
首页
上一页
下一页
尾页