首页
首页
建筑图纸
别墅图纸
别墅图纸
二层独栋别墅建筑施工图纸(底层带车库)
二层独栋别墅建筑施工图纸,本别墅建筑面积220平米,一层高3.9米,总高度9.2米,图纸包括立面图、剖面图、一层平面图、二层平面图、屋顶平面图等
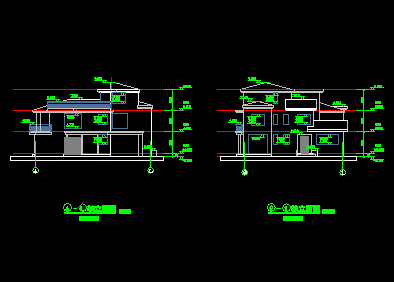
三套两层独栋别墅建筑施工图纸
三套两层独栋别墅建筑施工图纸,本图纸内含3套别墅图纸,图纸包括立面图、剖面图、一层平面图、二层平面图、屋顶平面图、门窗表、门窗详图、楼梯大样图、节点大样图、设计说明等
三层独栋临湖别墅建筑设计图纸
三层独栋临湖别墅建筑设计图纸,本别墅建筑面积213平米,图纸包括立面图、剖面图、一层平面图、二层平面图、三层平面图、屋顶平面图、效果图等
新农村四层双拼别墅建筑施工图纸
新农村四层双拼别墅建筑施工图纸,本别墅建筑面积256平米,一层高3米,高度18米,图纸包括立面图、剖面图、一层平面图、二层平面图、三层平面图、屋顶平面图、效果图、设计说明
两层私人别墅建筑施工图纸
两层私人别墅建筑施工图纸,本别墅建筑面积211平米,一层高3.2米,总高度8.8米,图纸包括立面图、剖面图、一层平面图、二层平面图、屋顶平面图、门窗表、门窗详图、楼梯大样图
三层框架结构别墅建筑施工图纸
三层框架结构别墅建筑施工图纸,本别墅建筑面积246平米,一层高3.3米,总高度11.8米,图纸包括立面图、剖面图、一层平面图、二层平面图、三层平面图、屋顶平面图、门窗表、门窗详图
某三层双拼别墅建筑施工图纸
某三层双拼别墅建筑施工图纸,本别墅建筑面积94.4平米,一层高3.2米,总高度9.9米,图纸包括立面图、剖面图、一层平面图、二层平面图、三层平面图、屋顶平面图等
四层联排别墅建筑施工图纸
四层联排别墅建筑施工图纸,本别墅一层建筑面积55平米,一层高3.2米,总高度12.8米,图纸包括立面图、剖面图、一层平面图、二层平面图、三层平面图、屋顶平面图等
四层独立别墅建筑施工图纸
四层独立别墅建筑施工图纸,本别墅一层建筑面积38平米,一层高3.2米,总高度12.8米,图纸包括立面图、剖面图、一层平面图、二层平面图、三层平面图、四层平面图、屋顶平面图等
三层独立别墅建筑施工图纸
三层独立别墅建筑施工图纸,本别墅建筑面积140平米,一层高3.2米,总高度12.5米,图纸包括立面图、剖面图、一层平面图、二层平面图、三层平面图、屋顶平面图等
三层临湖独栋别墅建筑施工图纸
三层临湖独栋别墅建筑施工图纸,本别墅建筑面积129.8平米,一层高3.2米,总高度12.6米,图纸包括立面图、剖面图、一层平面图、二层平面图、三层平面图、屋顶平面图等
二层带地下室独栋别墅建筑施工图纸
二层带地下室独栋别墅建筑施工图纸,本别墅建筑面积215平米,一层高3.2米,总高度6.2米,图纸包括立面图、剖面图、一层平面图、二层平面图、屋顶平面图、地下室平面图、效果图等
3某两层平屋顶别墅建筑施工图纸
某两层平屋顶别墅建筑施工图纸,本别墅建筑面积103.6平米,一层高3.2米,总高度9.6米,图纸包括立面图、剖面图、一层平面图、二层平面图、屋顶平面图等
两层连排别墅建筑施工图纸
两层连排别墅建筑施工图纸,本别墅建筑面积95.7平米,一层高3.2米,总高度9.1米,图纸包括立面图、剖面图、一层平面图、二层平面图、屋顶平面图等
两层带地下层山地别墅建筑施工图纸
两层带地下层山地别墅建筑施工图纸,本别墅建筑面积210平米,一层高3.2米,高度6.2米,图纸包括立面图、剖面图、一层平面图、二层平面图、三层平面图、屋顶平面图、地下室平面图
两层带地下层私人别墅建筑施工图纸
两层带地下层私人别墅建筑施工图纸,本别墅建筑面积200平米,一层高3.2米,高度6.2米,图纸包括立面图、剖面图、一层平面图、二层平面图、屋顶平面图、地下室平面图、效果图等
两层坡屋顶私人别墅建筑施工图纸
两层坡屋顶私人别墅建筑施工图纸,本别墅建筑面积262平米,一层高3.3米,总高度9米,图纸包括立面图、剖面图、一层平面图、二层平面图、屋顶平面图、效果图等
某二层坡屋顶独栋别墅建筑施工图纸
某二层坡屋顶独栋别墅建筑施工图纸,本别墅建筑面积219平米,一层高3.7米,总高度10.1米,图纸包括立面图、剖面图、一层平面图、二层平面图、屋顶平面图、效果图等
两层独栋高尚别墅建筑施工图纸
两层独栋高尚别墅建筑施工图纸,本别墅建筑面积197.60平米,一层高3.2米,总高度8.6米,图纸包括立面图、剖面图、一层平面图、二层平面图、屋顶平面图、效果图等
某2层独栋别墅建筑施工图纸
某2层独栋别墅建筑施工图纸,本别墅建筑面积196.73平米,一层高3.15米,总高度9米,图纸包括立面图、剖面图、一层平面图、二层平面图、屋顶平面图、效果图等
首页
上一页
下一页
尾页