首页
首页
建筑图纸
别墅图纸
别墅图纸
独立别墅立剖面图纸
独立别墅立剖面图纸。包括剖面图、东立面图、南立面图。
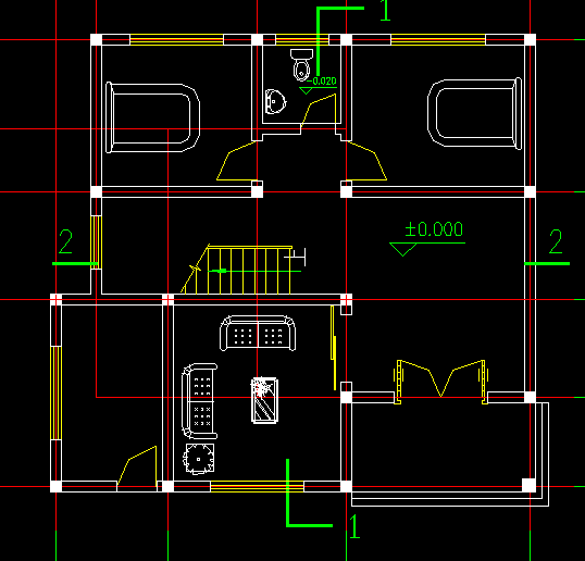
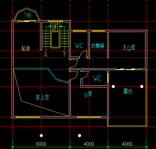
132平方米三层独立别墅建筑设计图纸
独立别墅建筑设计图纸面积为132平方米,建筑层数为三层。包括底层平面图、二层平面图、三层平面图、屋顶平面图、东立面图、北立面图、南立面图、剖面图。
324平方米三层独立联排别墅建筑施工图纸
独立联排别墅建筑施工图纸面积为324平方米,建筑层数为三层。包括二层平面图、三层平面图、标高平面图、一层平面图、屋顶平面图、北立面图、南立面图、东立面图、西立面图、剖面图。
121平方米二层独立别墅建筑施工图纸
独立别墅建筑施工图纸建筑面积为121平方米,建筑层数为二层。包括一层平面图、二层平面图。
182平方米二层独立别墅施工图纸
独立别墅施工图纸面积为182平方米,建筑层数为二层。包括一层平面图、 二层平面图、东立面图、南立面图、屋顶平面图。
224平方米二层独立别墅建筑施工图纸
独立别墅建筑施工图纸面积为224平方米,建筑层数为二层。包括一层平面图、二层平面图、南立面图、西立面图。
168平方米二层山庄别墅建筑设计图纸
山庄别墅建筑设计图纸面积为168平方米,建筑层数为二层。包括首层平面图、负一层平面图、二层平面图、剖面图、立面图、天面平面图、阳台立面图、梯顶平面图、正门大样。
204平方米三层别墅全套设计图纸
别墅全套设计图纸面积为204平方米,建筑层数为三层。包括三层平面图、屋顶平面图、立面图、一层平面图、二层平面图、地下室平面图、剖面图、楼梯剖面图、卫生间详图等。
169平方米三层独立别墅建筑设计图纸
独立别墅建筑设计图纸面积为169平方米,建筑层数为三层。包括首层平面图、二层平面图、三层平面图、剖面图。
180平方米二层独立别墅建筑施工图纸
独立别墅施工图纸面积为180平方米,建筑层数为二层。包括一层平面图、二层平面图、屋顶平面图。
221平方米二层独立别墅施工图纸
独立别墅施工图纸面积为221平方米,建筑层数为二层。包括一层平面图、二层平面图。
130平方米三层独立别墅建筑设计图纸
独立别墅建筑设计图纸面积为130平方米,建筑层数为三层。包括一层平面图、二层平面图、三层平面图、屋顶平面图、正立面图、背立面图、侧立面图、剖面图。
195平方米三层独立别墅户型设计图纸
独立别墅户型设计图纸面积为195平方米,建筑层数为三层。包括一层平面图、二层平面图、三层平面图、屋顶层平面图。
208平方米三层别墅建筑设计图纸
别墅建筑设计图纸面积为208平方米,建筑层数为三层。包括二层平面图、一层平面图、三层平面图、屋顶平面图、轴立面图、剖面图。
180平方米二层独立别墅建筑施工图纸
独立别墅建筑施工图纸面积为180平方米,建筑层数为二层。包括屋顶平 面图、剖面图、一层平面图、南立面图、北立面图、二层平面图、东立面图、西立面图。
238平方米二层别墅建筑施工图纸
别墅建筑施工图纸面积为238平方米,建筑层数为二层。包括一层平面图、二层平面图、阁楼平面图、屋顶平面图、立面图、剖面图、楼梯详图、节点详图。
208平方米三层别墅建筑设计图纸
别墅建筑设计图纸面积为208平方米,建筑层数为三层。包括门窗表、地下室平面图、一层平面图、二层平面图、三层平面图、屋顶平面图、立面图、楼梯剖面图、节点大样。
156平方米二层独立别墅建筑设计图纸
独立别墅建筑设计图纸面积为156平方米,建筑层数为二层。包括二层平面图、一层平面图、屋顶平面图、剖面图、立面图。
195平方米二层别墅建筑设计图纸
别墅建筑设计图纸面积为195平方米,建筑层数为二层。包括底层平面图、二层平面图、屋顶平面图、立面图、剖面图、楼梯厕所大样、墙身剖面图、门窗大样等。
180平方米三层别墅建筑设计图纸
建筑设计图纸面积为180平方米,建筑层数为三层。包括地下层平面图、一层平面图、二层平面图、三层平面图、屋顶平面图、剖面图、立面图。
首页
上一页
下一页
尾页