首页
首页
建筑图纸
别墅图纸
别墅图纸
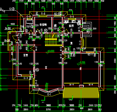
256平方米二层别墅建筑设计图纸
别墅建筑设计图纸面积为256平方米,建筑层数为二层。包括地下层平面图、一层平面图、剖面图、二层平面图、屋面平面图、轴立面图。
320平方米二层别墅建筑施工图纸
别墅建筑施工图纸面积为320平方米,建筑层数为二层。包括建筑总说明、地下层平面图、一层平面图、二层平面图、屋面平面图、东西立面图、北南立面图、剖面图、卫生间大样、门窗表。
234平方米三层别墅建筑施工图纸
别墅建筑施工图纸面积为234平方米,建筑层数为三层。包括首层平面图、二层平面图、三层平面图、坡屋面投影图、正八角亭屋顶投影图、轴立面图、入口门楼详图、车库入口大样图等。
294平方米二层独立别墅施工设计图纸
两层独立别墅施工设计图纸面积为294平方米,建筑层数为二层。包括楼梯屋顶平面图、二层平面图、屋顶平面图、轴立面图、窗套立面图、一层平面图、二层平面图、剖面图、景观休息廊柱详图。
169平方米三层别墅建筑设计图纸
别墅建筑设计图纸面积为169平方米,建筑层数为三层。包括一层平面图、二层平面图、三层平面图、阁楼层平面图、屋顶平面图、立面图、剖面图、楼梯详图、凉亭详图。
192平方米二层联体别墅建筑施工图纸
联体别墅建筑施工图纸面积为192平方米,建筑层数为二层。包括剖面图、南立面图、北立面图、地下层平面图、首层平面图、屋顶平面图、二层平面图。
440平方米三层联体别墅建筑设计图纸
联体别墅建筑设计图纸面积为440平方米,建筑层数为三层。包括一层平面图、南立面图、西立面图、剖面图、二层平面图、三层平面图、屋顶平面图。
266平方米三层联体别墅建筑设计图纸
联体别墅建筑设计图纸面积为266平方米,建筑层数为三层。包括底层平面图、二层平面图、三层平面图、屋顶平面图、南立面图、侧立面图、剖面图。
468平方米三层联体别墅建筑设计图纸
联体别墅建筑设计图纸面积为468平方米,建筑层数为三层。包括一层平面图、二层平面图、三层平面图、屋顶平面图、立面图、剖面图。
450平方米二层联体别墅建筑设计图纸
联体别墅建筑设计图纸面积为450平方米,建筑层数为二层。包括二层平面图、一层平面图、轴立面图、剖面图、屋顶平面图、阁楼平面图。
495平方米二层联体别墅建筑施工图纸
联体别墅建筑施工图纸面积为495平方米,建筑层数为二层。包括门窗表、门窗大样、总平面图、一层平面图、二层平面图、阁楼层平面图、南立面图、北立面图、西立面图、剖面图。
150平方米二层别墅建筑设计图纸
别墅建筑设计图纸面积为150平方米,建筑层数为二层。包括底层平面图、 二层平面图、东立面图、南立面图、屋顶平面图、装饰详图、窗饰详图、柱帽详图、檐口详 图、雨篷详图。
714平方米三层联排别墅建筑施工图纸
联排别墅建筑施工图纸面积为714平方米,建筑层数为三层。包括地下室层平面图、首层平面图、二层平面图、三层平面图、屋顶平面图、东立面图、西立面图、南立面图、北立面图、剖面图等。
166平方米三层联排现代别墅建筑设计图纸
联排现代别墅建筑设计图纸面积为166平方米,建筑层数为三层。包括底层平面图、一层平面图、二层平面图、三层平面图、侧立面图、南立面图、北立面图。
450平方米二层联排别墅建筑设计图纸
联排别墅建筑设计图纸面积为450平方米,建筑层数为二层。包括二层平面图、一层平面图、轴立面图、剖面图、屋顶平面图、阁楼平面图。
390平方米三层联排别墅建筑施工图纸
联排别墅建筑施工图纸面积为390平方米,建筑层数为三层。包括一层平面图、屋顶平面图、二层平面图、立面图、三层平面图、楼梯剖面图、天沟大样、露台栏杆立面图、墙身大样等。
300平方米三层联排别墅建筑设计图纸
联排别墅建筑设计图纸面积为300平方米,建筑层数为三层。包括立面图、剖面图、架空层平面图、一层平面图、夹层平面图、二层平面图、三层平面图、阁楼平面图。
770平方米三层连体别墅建筑施工图纸
连体别墅建筑施工图纸面积为770平方米,建筑层数为三层。包括轴立面图、剖面图、屋顶平面图、窗立面图、三层平面图、二层平面图、一层平面图、车库层平面图等。
202平方米三层联排别墅建筑设计图纸
联排别墅建筑设计图纸面积为202平方米,建筑层数为三层。包括三层平面图、南立面图、二层平面图、一层平面图、西立面图、北立面图。
196平方米三层连排别墅建筑施工图纸
连排别墅建筑施工图纸面积为196平方米,建筑层数为三层。包括一层平面图、二层平面图、南立面图、北立面图、三层平面图、西立面图。
首页
上一页
下一页
尾页