首页
首页
建筑图纸
别墅图纸
别墅图纸
二层别墅建筑设计图纸
二层别墅建筑设计图纸包括雨篷大样图、一层平面图、二层平面图、立面图等。
四层别墅建筑设计图纸
四层别墅建筑设计图纸包括首层平面图、二层平面图、三层平面图、四层平面图、窗套大样图、三层阳台放大平面图、屋顶窗平面图、屋顶窗屋顶平面图、楼梯大样图、局部立面大样图、
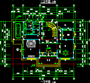
二层别墅建筑设计图纸
二层别墅建筑设计图纸包括底层平面图、正立面图、二层平面图等。
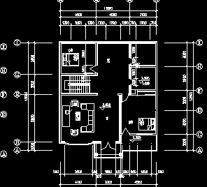
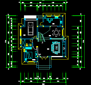
二层别墅建筑设计图纸
二层别墅建筑设计图纸包括1-1剖面图、东立面图、阁楼平面图、一层平面图、二层楼梯详图、地下室平面图等。
三层别墅建筑结构设计图纸
三层别墅建筑结构设计图纸包括剖面图、一层平面图、二层结构平面图、三层结构平面图、二层平面图、屋顶结构平面图、三层平面图、屋顶平面图等。
二层别墅建筑施工图纸
二层别墅建筑施工图纸包括首层平面图、二层平面图、屋顶层平面图、立面图、1-1剖面图、二层楼梯大样图、首层卫生间大样图等。
三层别墅建筑设计图纸
三层别墅建筑设计图纸包括首层平面图、I~I剖面图、三层平面图、屋面层平面图、二层平面图、立面图、阳台立面图等。
三层别墅建筑设计图纸
三层别墅建筑设计图纸包括立面图、卫生间大样图、A-A剖面图、阳台大样图、二层平面图、三层平面图、一层平面图、地下室平面图、屋顶平面图、阁楼层平面图、三层楼梯大样图等。
3套三层别墅建筑设计图纸
3套三层别墅建筑设计图纸包括一层平面图、三层平面图、二层平面图、WC2放大平面、厨房放大图、屋顶平面图等。
四层别墅建筑设计图纸
四层别墅建筑设计图纸包括一层平面图、二层平面图、三层平面图、四层平面图、屋顶阁楼平面图、屋顶平面图、西立面图等。
二层别墅建筑施工图纸
二层别墅建筑施工图纸包括一层平面图、二层平面图、剖面图、卫生间平面图、立面图、雨水口立面图、楼梯栏杆大样图等。
三层别墅建筑全套施工图纸
三层别墅建筑全套施工图纸包括门廊大样图、二层平面图、一层平面图、三层平面图、屋顶平面图、立面图、剖面图、凸窗大样图等。
三层别墅建筑结构设计图纸
三层别墅建筑结构设计图纸包括一层平面图、二、三层平面图、阁楼层平面图、屋顶平面图、南、北立面图、剖面图、卫生间大样图、A楼梯大样图、门窗表、门窗大样图、节点大样图、
二层别墅建筑设计图纸
二层别墅建筑设计图纸包括负一层平面图、一层平面图、二层平面图、屋顶平面图、立面图等。
某别墅建筑设计图纸
某别墅建筑设计图纸包括平面图、基础平面图、屋顶平面图、立面图等。
二层别墅建筑设计图纸
二层别墅建筑设计图纸包括一层平面图、二层平面图、阁楼层平面图、总平面图、南立面图等。
3套二层别墅建筑设计图纸
3套二层别墅建筑设计图纸包括立面图、天面平面图、屋顶平面图、二层平面图、夹层平面图、首层平面图等。
14个别墅建筑设计图纸
14个别墅建筑设计图纸包括一层平面图、二层平面图、立面图等。
二层别墅建筑设计图纸
二层别墅建筑设计图纸包括底层平面图、侧立面图、二层平面图、屋顶平面图等。
二层别墅建筑设计图纸
二层别墅建筑设计图纸包括一层平面图、二层平面图、屋顶平面图、南立面图、剖面图等。
首页
上一页
下一页
尾页