首页
首页
建筑图纸
别墅图纸
别墅图纸
联排三层别墅建筑设计图纸
联排三层别墅建筑设计图纸包括南立面图、节点大样图、楼梯大样图、空调板大样图、1-1剖面图、半地下层平面图、一层平面图、二层平面图、三层平面图、屋顶平面图、构架平面图等。
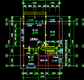
豪华三层别墅建筑施工图纸
豪华三层别墅建筑施工图纸包括一层平面图、三层平面图、屋顶平面图、轴立面图、1-1剖面图、厨房、卫生间、楼梯间平面示意图、檐口大样图、阳台大样图、门窗立面大样图等。
三层别墅建筑施工图纸
三层别墅建筑施工图纸包括一层平面图、二层平面图、三层平面图、轴立面图、1-1剖面图、屋顶平面图、MC1立面示意图、护栏立面图、阳台剖面图、地面及通风洞剖面图等。
豪华三层别墅建筑施工图纸
豪华三层别墅建筑施工图纸包括半地下层平面图、首层平面图、剖面图、二层平面图、三层平面图、屋顶平面图、半地下层总平面图、立面图、室外楼梯详图等。
豪华三層别墅建筑设计图纸
豪华三層别墅建筑设计图纸包括三層平面圖、屋面平面圖、二層平面圖、衛生間剖面大樣詳圖、一層平面圖、前立面圖、外部擋杆大樣詳圖、剖立面圖A-A等。
农村三层别墅建筑结构设计图纸
农村三层别墅建筑结构设计图纸包括一层平面图、二层平面图、三层平面图、屋顶平面图、立面图、1-1剖面图、1#卫生间放大图、楼梯剖面详图、二层板平面图、基础平面布置图等。
皇明别墅建筑设计图纸
皇明别墅建筑设计图纸包括平面图、立面图、剖面图等。
四层别墅建筑设计图纸
四层别墅建筑设计图纸包括A11别墅一层拼接平面图、四层平面图、车库层平面图、一层平面图、屋顶层平面图、屋顶俯视图、二层平面图、三层平面图、1-1剖面图拼接侧立面图等。
几套别墅建筑设计图纸
几套别墅建筑设计图纸包括车库层平面图、一层平面图、二层平面图、阁楼层平面图、南立面图、屋顶层平面图、阁楼层平面图等。
几套斜屋顶三层别墅建筑设计图纸
几套斜屋顶三层别墅建筑设计图纸包括二层平面图、一层平面图、三层,屋顶平面图、南立面图、A-A剖面图等。
私家二层小别墅建筑设计图纸
私家二层小别墅建筑设计图纸包括一层平面图、二层平面图、顶层平面图、剖面图、东立面图等。
三层别墅建筑设计图纸
三层别墅建筑设计图纸包括地下层平面图、一层平面图、二层平面图、三层平面图、屋顶平面图、剖面图、立面图等。
花园低密度三层别墅建筑设计图纸
花园低密度三层别墅建筑设计图纸包括轴立面图、地下室平面图、三层平面图、二层平面图、屋面平面图、内庭院二层平面图、无柱入口侧立面图等。
经典三层别墅建筑设计图纸
经典三层别墅建筑设计图纸包括东立面图、三层平面图、二层平面图、首层平面图、天面图等。
经典别墅建筑设计图纸
经典别墅建筑设计图纸包括立面图等,供参考!
经典三层别墅建筑设计图纸
经典三层别墅建筑设计图纸包括三层平面图、二层平面图、一层平面图、入户环境图、轴立面图、II-II剖面图、窗线角立面图等。
经典二层别墅建筑施工图纸
经典二层别墅建筑施工图纸包括一层平面图、二层平面图、一层楼梯详图、倒坡顶与垂直墙面交接节点图、窗套平面大样图、屋顶平面图、剖面图、轴立面图等。
经典三层别墅建筑设计图纸
经典三层别墅建筑设计图纸包括一层平面图、立面图、二层平面图、三层平面图等。
精美荷兰式别墅建筑设计图纸
精美荷兰式别墅建筑设计图纸包括平面图、立面图、剖面图、大样图等。
精巧型三层别墅建筑设计图纸
精巧型三层别墅建筑设计图纸包括三层平面图、顶层平面图、1-1剖面图、屋面平面图、夹层平面图、二层平面图、一层平面图、立面图、总平面图等。
首页
上一页
下一页
尾页