首页
首页
建筑图纸
别墅图纸
别墅图纸
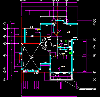
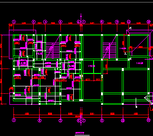
二层别墅建筑结构施工图纸
二层别墅建筑结构施工图纸包括一层平面图、二层平面图、屋顶平面图、楼梯平面图、剖面图等
三层别墅全套建筑施工图纸
三层别墅全套建筑施工图纸包括三层平面图、坡屋顶平面图、剖面图、局部立面放大图、窗套平面大样图、首层平面图、夹层平面图、总平面图、二层平面图、弧梯放大平面图、
三层别墅建筑设计图纸
三层别墅建筑设计图纸包括一层平面图、二层平面图、三层平面图、屋面平面图、立面图等。
某三层别墅建筑施工图纸
某三层别墅建筑施工图纸包括剖面图、三层平面图、一层平面图、二层平面图、剖面示意图、屋顶平面图、烟囱顶部立面图等。
三层别墅建筑施工图纸
三层别墅建筑施工图纸包括首层平面图、二层平面图、屋顶平面图、三层平面图、立面图、2--2剖面图、楼梯首层平面图、三层露台2平立剖面图、室外踏步及花槽平立剖面图等。
联体三层别墅建筑设计图纸
联体三层别墅建筑设计图纸包括基础平面图、平台拦杆详图、二层平面图、南立面图、B-B剖面图、一层平面图、三层平面图、屋面平面图等。
联体三层别墅建筑设计图纸
联体三层别墅建筑设计图纸包括基础平面图、柱平面图、屋面梁平面图、屋面板平面图、一层平面图、三层平面图、屋面平面图、南立面图、车库门立面图、平台拦杆详图、B-B剖面图等。
日式三层别墅建筑施工图纸
日式三层别墅建筑施工图纸包括一层平面图、二层平面图、三层平面图、南立面图、屋顶平面图、1-1剖面图等。
双拼三层别墅建筑施工图纸
双拼三层别墅建筑施工图纸包括立面图、一层平面图、剖面图、二层平面图、三层平面图、顶层平面图等。
山区二层小别墅建筑施工图纸
山区二层小别墅建筑施工图纸包括地下室平面图、一层平面图、二层平面图、屋顶平面图、顶棚层平面图、立面图、屋顶平面图等。
三层别墅建筑全套施工图纸
三层别墅建筑全套施工图纸包括一层平面图、二层平面图、三层平面图、屋顶平面图、东立面图、B-B剖面图、楼梯栏杆大样图等。
山体二层别墅全套建筑施工图纸
山体二层别墅全套建筑施工图纸包括车库层平面图、一层平面图、二层平面图、屋顶平面图、东立面图、B-B剖面图、楼梯栏杆大样图等。
别墅建筑装修图纸(含效果图)
别墅建筑装修图纸(含效果图),包括原始平面图、改造平面图、地面材质图、吊顶详图、水电路改造图、入户衣帽柜详图等
生态园别墅建筑施工图纸
生态园别墅建筑施工图纸包括一层平面图、屋顶平面图、立面图、剖面图、节点详图、卫生间大样图、楼梯大样图等。
联体四层别墅施工图纸(含建筑结构水电暖)
联体四层别墅施工图纸(含建筑结构水电暖)包括一层平面图、四层平面图、阁楼层平面图、屋面排水平面图、轴立面图、电梯井道截面图、剖面图、楼梯详图、三层照明平面图、
某欧式风格别墅建筑装修图纸(含效果图)
某欧式风格别墅建筑装修图纸(含效果图),包括平面家具配置图、平面布置总图、插座布置图、地坪材料总图、天花平面总图、天花平面定位图、说明及电气系统图等
室内带游泳池的三层别墅建筑设计图纸
室内带游泳池的三层别墅建筑设计图纸包括立面图、2-2剖面图、屋顶平面图、三层平面图、二层平面图、一层平面图等。
双联三层别墅建筑结构施工图纸
双联三层别墅建筑结构施工图纸包括一层平面图、台阶做法图、二层平面图、三层平面图、窗套详图、B-B楼梯剖面图、背立面图、屋顶平面图、檐口详图等。
三层别墅建筑设计图纸
三层别墅建筑设计图纸包括二层平面图、三层平面图、屋顶平面图、一层平面图、轴立面图、B-B墙身剖面详图、二层卧室露台圆形屋顶剖面详图、厨房窗线脚立面尺寸图等。
三层别墅建筑施工图纸
三层别墅建筑施工图纸包括一层平面图、北立面图、梯板剖面图、剖面图、二层平面图、屋顶平面图、 三层平面图等。
首页
上一页
下一页
尾页