首页
首页
建筑图纸
别墅图纸
别墅图纸
二层别墅建筑设计图纸(含效果图)
二层别墅建筑设计图纸(含效果图)包括半地下室平面图、一层平面图、轴立面图、2-2剖面图、入户门套节点大样图、窗套(山花)加工安装节点大样图、二层平面图、屋顶平面图等。
三层别墅建筑结构设计图纸(含效果图)
三层别墅建筑结构设计图纸(含效果图)包括车库平面图、一层平面图、二层平面图、三层平面图、屋面平面图、三层梁钢筋图、一层板钢筋图、底层柱钢筋图、基础梁钢筋图、
某山庄三层别墅建筑结构设计图纸(含效果图)
某山庄三层别墅建筑结构设计图纸(含效果图)包括一层平面图、三层平面图、1-1剖面图、顶层平面图、卫生间大样图、腰线大样图、楼梯平面详图、阳台大样图、玻璃栏杆大样图等。
一套联体二层别墅建筑结构施工图纸(含效果图)
一套联体二层别墅建筑结构施工图纸(含效果图)包括屋顶平面图、二层平面图、一层平面图、1-1剖面图、南立面图等。
新农村二层别墅建筑结构设计图纸(含效果图)
新农村二层别墅建筑结构设计图纸(含效果图)包括丁字交叉处钢筋布置图、拉墙筋留设示意图、一层平面图、二层平面图、屋顶平面图、立面图、剖面图等。
奢华三层别墅建筑结构设计图纸(含效果图)
奢华三层别墅建筑结构设计图纸(含效果图)包括地下室平面图、首层平面图、二层平面图、三层平面图、屋顶平面图、门窗大样门窗表、节点详图、螺旋梯平面详图、1-1剖面图、轴立面图等。
三层别墅建筑结构设计图纸(含效果图)
三层别墅建筑结构设计图纸(含效果图)包括首层平面图、二层平面图、三层平面图、屋面平面图、正立面图、右立面图、剖面图、基础配筋图、屋面配筋图等。
大型二层别墅建筑结构设计图纸(含效果图)
大型二层别墅建筑结构设计图纸(含效果图)包括首层平面图、二层平面图、屋面平面图、右立面图、基础配筋图、屋面配筋图等。
独栋三层别墅建筑设计图纸(含效果图)
独栋三层别墅建筑设计图纸(含效果图)包括一层平面图、三层平面图、顶层平面图、轴立面图、大样图、A-A剖面图、门窗大样图、门窗表等。
欧式三层别墅建筑设计图纸(含效果图)
欧式三层别墅建筑设计图纸(含效果图)包括立面图、1-1剖面图、阳台栏杆大样图、装饰柱大样图、装饰柱大样图、1-1剖面图、屋顶平面图、三层平面图、一层平面图等。
农村三层别墅建筑设计图纸(含效果图)
农村三层别墅建筑设计图纸(含效果图)包括一层平面图、三层平面图、屋顶平面图、轴立面图、1#楼梯详图、1-1剖面图、门窗大样图、门窗表、节点详图等。
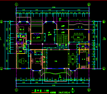
三层别墅设计图纸(含建筑结构电气+效果图)
三层别墅设计图纸(含建筑结构电气+效果图)包括总平面图、首层平面图、二层平面图、三层平面图、屋面平面图、正立面图、右立面图、基础配筋图、屋面配筋图、屋顶防雷平面图等。
农村三层别墅建筑结构设计图纸(含效果图)
农村三层别墅建筑结构设计图纸(含效果图)包括三层平面图、屋顶平面图、一层平面图、西立面图、3.750m标高梁布置图、楼梯剖面图、楼梯结构剖面图、基础平面布置图、
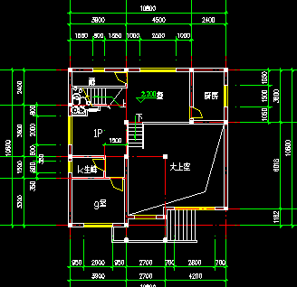
二层别墅建筑设计图纸(含效果图)
二层别墅建筑设计图纸(含效果图)包括一层平面图、二层平面图、南立面图、剖面图、散水大样图、栏杆大样图等。
乡间三层别墅建筑设计图纸(含效果图)
乡间三层别墅建筑设计图纸(含效果图)包括二层平面图、底层平面图、基础平面图、二层结构平面图、屋盖结构平面图、立面图、剖面图等。
二层别墅设计图纸(含建筑结构水电+效果图)
二层别墅设计图纸(含建筑结构水电+效果图)包括室外台阶详图、屋顶结构透视图、天沟大样图、屋顶结构图、盖板平面图、配电系统图等。
二层别墅设计图纸(含建筑结构水电+效果图)
二层别墅设计图纸(含建筑结构水电+效果图)包括一层平面图、屋顶平面图、北立面图、二层楼梯平面图、基础样图、基础平面图、屋顶梁结构图、一层照明图、给排水系统图等。
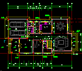
豪华二层别墅施工图纸(含建筑结构水电+效果图)
豪华二层别墅施工图纸(含建筑结构水电+效果图)包括架空层平面图、一层平面图、屋顶层平面图、正立面图、1-1剖面图、墙柱连接大样图等。
二层别墅设计图纸(含建筑结构水电+效果图)
二层别墅设计图纸(含建筑结构水电+效果图)包括一层平面图、二层平面图、屋顶平面图、轴立面、基础平面布置图、二层板钢筋图、屋面板钢筋图、楼梯平面布置图等。
二层别墅设计图纸(含建筑结构水电+效果图)
二层别墅设计图纸(含建筑结构水电+效果图)包括一层平面图、二层平面图、屋顶平面图、节点详图、南立面图、1—1剖面图、楼梯平面图及卫生间详图、楼梯剖面图等。
首页
上一页
下一页
尾页