首页
首页
建筑图纸
别墅图纸
别墅图纸
三层别墅建筑设计图纸
三层别墅建筑设计图纸包括一层平面图、二层平面图、三层平面图、阁楼层平面图、屋顶层平面图、南立面图、剖面图、大门柱详图、楼梯阁楼层平面图、3#卫生间详图等。
一套别墅建筑施工图纸
一套别墅建筑施工图纸包括屋顶平面图、Ⅰ-Ⅰ剖面图、楼梯一层平面图、北立面图、首层平面图、二层平面图、东立面图等。
一套三层别墅建筑设计图纸
一套三层别墅建筑设计图纸包括立面图、2-2剖面图、三层平面图、屋顶平面图、二层平面图、一层平面图等。
一套三层别墅建筑施工图纸
一套三层别墅建筑施工图纸包括一层平面图、二层平面图、三层平面图、屋顶平面图、轴立面图等。
一套豪华现代别墅建筑施工图纸
一套豪华现代别墅建筑施工图纸包括一层平面图、二层平面图、标高6.800处平面图、屋顶平面图、轴立面图、2-2剖面图、门窗大样图等。
一套二层别墅建筑施工图纸
一套二层别墅建筑施工图纸包括东立面图、北立面图、1-1剖面图、一层平面图、二层平面图、屋顶平面图等。
一套简单的别墅建筑全套设计图纸
一套简单的别墅建筑全套设计图纸包括南立面图、剖面图、一层平面图、二层平面图、阁楼层平面图、屋顶层平面图、露台栏杆放大图、大门柱线角放样图、散水详图、楼梯二层平面图
一套私人别墅建筑施工图纸
一套私人别墅建筑施工图纸包括屋顶平面图、夹层平面图、二层平面图、三层平面图、首层平面图、南面图等。
一套完整的北方别墅建筑施工图纸
一套完整的北方别墅建筑施工图纸包括阁楼层平面图、屋面图、立面图、1#2#卫生间平面放大图、一层平面图、二层平面图、剖面图等。
一套详细的别墅建筑施工图纸
一套详细的别墅建筑施工图纸包括墙身大样图、墙身大样,节点详图等。
一幢别墅建筑设计图纸
一幢别墅建筑设计图纸包括隔层平面图、一层平面图、四层平面图、二三层平面图、屋顶结构图、屋顶平面图、立面图等。
意大利式独立别墅建筑设计图纸
意大利式独立别墅建筑设计图纸包括地下室平面图、1-1剖面图、二层平面图、首层平面图、轴立面图、三层平面图、夹层平面图等。
某别墅建筑施工图纸
某别墅建筑施工图纸包括地下层平面图、门窗表、门窗详图、一层平面图、柱、剪力墙配筋图、地下室顶板、梁配筋图、楼梯大样图、屋顶平面图、三层平面图、3-3剖面图、立面图、
某山庄三层别墅建筑设计图纸
某山庄三层别墅建筑设计图纸包括轴立面图、二层平面图、屋顶平面图、三层平面图、C-5a窗大样图、底层平面图、剖面图等。
某三层别墅建筑设计图纸
某三层别墅建筑设计图纸包括正立面图、二层平面图、屋面平面图、阁楼平面图、三层平面图、一层平面图、架空层平面图等。
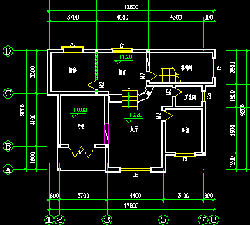
三层别墅建筑设计图纸
三层别墅建筑设计图纸包括首层平面图、二层平面图、三层平面图、东立面图等。
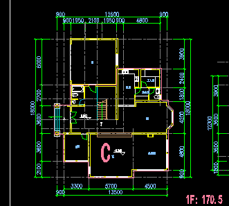
三层别墅建筑施工图纸
三层别墅建筑施工图纸包括一层平面图、二层平面图、三层平面图、屋顶平面图、北立面图、B-B剖面图、门窗表、门窗详图、1#楼梯I-I剖面图、1#楼梯三层平面图等。
二层别墅建筑设计图纸
二层别墅建筑设计图纸包括底层平面图、二层平面图、北立面图、剖面图等。
某三层别墅建筑设计图纸
某三层别墅建筑设计图纸包括一层平面图、2 空调搁板平面图、二层平面图、三层平面图、屋顶架空平面图、2装饰柱详图、I-I剖面图、立面图等。
郊区别墅建筑设计图纸
郊区别墅建筑设计图纸包括一层平面图、二层平面图、B-B剖面图、厨房、洗衣平面详图、卫生间平面详图、屋顶平面图、西立面图等。
首页
上一页
下一页
尾页