首页
首页
建筑图纸
别墅图纸
别墅图纸
某2层豪华别墅建筑施工图
某2层豪华别墅建筑施工图,包括平面图、立面图、剖面图等,供大家参考!
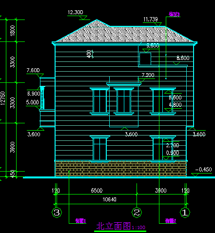
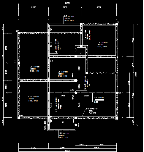
某3层花园别墅建筑施工图
工程等级:4级;设计使用年限:50年,防火耐火等级:二级;屋面防水等级:Ⅲ级;抗震设防烈度:7度。
某2层花园别墅建筑施工图
某2层花园别墅建筑施工图,包括平面图、立面图、剖面图等,供大家参考!
某2层花园别墅建筑施工图
建筑层数:二层,抗震设防烈度:六度本工程为低层住宅类建筑,耐火等级为二级。
某4层花园洋房住宅建筑施工图
某4层花园洋房住宅建筑施工图,包括平面图、立面图、剖面图等,供大家参考!
某2层联排别墅建筑设计图
建筑面积:1690.30㎡,建筑层数: 住宅四层,下设储藏层,上设阁楼.
某3层联排别墅建筑施工图
某3层联排别墅建筑施工图,包括平面图、立面图、剖面图等,供大家参考!
某2层联排别墅建筑施工图
某2层联排别墅建筑施工图,包括平面图、立面图等,供大家参考!
某3层联排别墅建筑施工图
某3层联排别墅建筑施工图,包括平面图、立面图、剖面图等,供大家参考!
某2层欧式别墅建筑设计图
某2层欧式别墅建筑设计图,包括平面图、立面图、剖面图等,供大家参考!
某三层别墅建筑设计图
某三层别墅建筑设计图,供大家参考!
某三层别墅立面设计图
某三层别墅立面设计图,供大家参考!
某四层别墅建筑施工图
某四层别墅建筑施工图,包括平面图、立面图、剖面图等,供大家参考!
某3层小别墅建筑设计图
某3层小别墅建筑设计图,包括平面图、立面图、剖面图等,供大家参考!
某2层小别墅建筑施工图
某2层小别墅建筑施工图,包括平面图、立面图等,供大家参考!
某小区5层叠加别墅平面图
某小区5层叠加别墅平面图,供大家参考!
某小区4层几套别墅建筑施工图
某小区4层几套别墅建筑施工图,包括平面图、立面图等,供大家参考!
某2层休闲别墅建筑施工图
建筑面积为:1979.70mp㎡,建筑工程等级为三级。建筑耐久年限二级,设计使用年限50年。
某2层英式别墅建筑设计图
某2层英式别墅建筑设计图,包括平面图、立面图、剖面图等,供大家参考!
某2层别墅建筑施工图
某2层别墅建筑施工图,包括平面图、立面图、剖面图等,供大家参考!
首页
上一页
下一页
尾页