首页
首页
建筑图纸
别墅图纸
别墅图纸
新农村建设二层别墅设计图纸
本工程为新农村建设项目:要求满足新的居住条件,层数为二层,屋顶为阁楼空间,室内楼梯,包括平面图、立面图、剖面图等。供大家参考!
别墅区规划设计竣工图
别墅区规划设计竣工图,供大家参考!
某别墅式温泉酒店施工图纸
某别墅式温泉酒店施工图纸包括总平面图、首层平面图、二层平面图、屋面平面图、楼梯踏步大样图、围墙及围裙大样图等
二层小别墅设计图纸(含效果图)
二层小别墅设计图纸(含效果图)包括丁字交叉处钢筋布置图、东立面图、西立面图、北立面图、南立面图、屋顶平面图、一层平面图、二层平面图等。
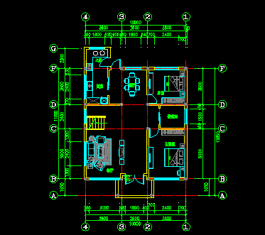
两层乡村别墅设计图纸
两层乡村别墅设计图纸包括立面图、山墙大样图、1-1剖面图、LC6大样图、一层平面图、二层平面图、卫生间大样图、屋顶平面图等。
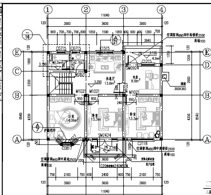
二层别墅设计图纸(含效果图)
二层别墅设计图纸(含效果图)包括一层平面图、二层平面图、顶层平面图、1-4立面图等。
二层独栋别墅设计图纸(含效果图)
二层独栋别墅设计图纸(含效果图)包括线脚大样图、天沟大样图、散水大样图等。
二层带庭院别墅设计图纸(含效果图)
二层带庭院别墅设计图纸(含效果图)包括一层平面图、二层平面图、阳台栏板立面图、屋檐大样图、阳台二层平面图、栏板大样图、立面图、楼梯间屋面平面图、栏杆固定大样图、剖面图等。
四层别墅设计图纸(含效果图)
四层别墅设计图纸(含效果图)包括一层平面图、二层平面图、三层平面图、四层平面图、屋顶平面图、建筑详图、立面图、1-1剖面图、门窗详图等。
两层独栋别墅设计图纸(含效果图)
两层独栋别墅设计图纸(含效果图)包括一层平面布置图、一层平面布置图、屋顶平面布置图、基础垫层布置图、基础梁布置图、二层梁布置图、屋顶梁布置图、二层板配筋图、屋顶板配筋图等。
二层小别墅设计图纸(含效果图)
二层小别墅设计图纸(含效果图)包括二层平面图、一层平面图等。
某新农村二层别墅设计图纸(含效果图)
某新农村二层别墅设计图纸(含效果图)包括一层平面图、二层平面图、剖面图、正立面图、背立面图等。
110平米带庭院二层别墅设计图纸(含效果图)
110平米带庭院二层别墅设计图纸(含效果图),供参考!
89.96平米二层别墅设计图纸(含效果图)
89.96平米二层别墅设计图纸(含效果图),供参考!
二层带庭院别墅设计图纸(含效果图)
二层带庭院别墅设计图纸(含效果图),供参考!
2层新农村别墅设计图纸(含效果图)
2层新农村别墅设计图纸(含效果图)包括一层平面图、总平面图、二层平面图、屋顶层平面图、1-1剖面图、正立面图、左侧立面图等。
两层田园别墅设计图纸
两层独栋别墅,建筑总面积326.7平米,一层170.5平米,二层156.2平米,建筑参考造价11.38万元。一层设有客厅、餐厅、厨房、起居室、卧室、卫生间、洗衣房、工人房和车库
豪华2层别墅设计图纸
本户型外观造型别致大方,采光通风良好,色彩明快,整体功能分区合理,房间尺度设计适宜,豪华大气,富有时代气息。
农村二层别墅设计图纸
农村二层别墅设计图纸包括总平面图、一层平面图、二层平面图、屋顶平面图、门楼立面图、立面图等。
二层独栋别墅设计图纸
二层独栋别墅设计图纸包括一层平面图、二层平面图、屋面平面图、基础平面布置图、基础顶柱配筋图、柱平面布置图、柱配筋图、地梁层结构平面图、轴侧图、二层梁层结构平面图等。
首页
上一页
下一页
尾页