首页
首页
建筑图纸
别墅图纸
别墅图纸
三层别墅设计图纸(含效果图)
三层别墅设计图纸(含效果图)包括首层平面图、夹层平面图、屋顶平面图、二层平面图、三层平面图、轴立面图、1-1剖面图等。
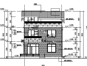
三层别墅设计图纸
三层别墅设计图纸包括一层平面图、二层平面图、三层平面图、东立面图、西立面图、北立面图、楼梯尺寸图、正视图等。
140平方米三层新农村别墅设计图(含建筑结构水电)
户型三层新农村别墅,图纸包括平面图、立面图、剖面图、屋顶平面图、基础平面布置图、柱配筋平面图、梁、板配等,供参考!
二层别墅建筑全套施工图纸
二层别墅建筑全套施工图纸包括一层平面图、二层平面图、立面图、剖面图、楼梯详图、屋面排水平面图等。
125平米3层独栋别墅设计图(包括建筑结构水电图)
户型是3层独栋别墅,图纸包括平面图、立面图、剖面图、屋顶平面图、基础平面布置图、结构层梁配筋图、结构层板配筋图、电气平面图、弱电平面图、给排水平面图等,供参考!
170平米三层独栋别墅设计图(含建筑结构水电)
本户型为三层独栋别墅,图纸包括平面图、立面图、剖面图、屋顶平面图、基础平面图、基顶~三层柱平面布置图、板平面配筋图、梁平面配筋图、照明平面图、插座平面图
160平米三层新农村独栋别墅设计图(含建筑结构水电)
本户型为三层新农村独栋别墅,图纸包括平面图、立面图、剖面图、屋顶平面图、节点详图、基础平面布置图、基础顶~6.570m柱配筋图、3.570m层结构梁、板配筋图、楼梯详图
129平方米3层独栋别墅设计图(含建筑结构电)
本户型为3层独栋别墅,图纸包括平面图、立面图、剖面图、屋顶平面图、基础平面 .详图屋面结构布置图、二层(3.600)楼面结构布置图、三层(6.900)楼面结构布置图、电气平面图、弱电平面图等,供参考!
二层别墅建筑设计图纸(带效果图)
二层别墅建筑设计图纸(带效果图)包括剖面图、地下层平面图、一层平面图、二层平面图、屋顶平面图、南立面图、西立面图等。
100平方米3层独栋别墅设计图(PDF)
100平方米3层独栋别墅设计图(PDF),包括平面图、立面图、剖面图、屋顶平面图、基础结构,结构平面,给水、排水系统图,配电平面图,配电系统图、防雷及接地平面等,供参考!
六套三层别墅建筑设计图纸
六套三层别墅建筑设计图纸包括一层平面图、侧立面图、剖面图、二层平面图、半地下层平面图、三层平面图等。
93平方米农村别墅设计图(PDF格式)
93平方米农村别墅设计图(PDF格式),包括平面图、立面图、剖面图、屋顶平面图、基础结构,结构平面,给水、排水系统图,配电平面图,配电系统图、防雷及接地平面等,供大家参考!
二层别墅建筑设计图纸
二层别墅建筑设计图纸包括一层平面图、二层平面图、屋面平面图、立面图、1-1剖面图等。
中式别墅施工图纸
中式别墅施工图纸包括平立面、剖面、墙身、门窗立面、设计说明、防火说明、节能说明
二层别墅建筑设计图纸(含效果图)
二层别墅建筑设计图纸(含效果图)包括分析草图、一层空间布置图、二层平面图、顶面布置图、负一层平面图、一层平面图、西立面图、B-B剖面图、总平面图等。
129平方米三层独栋别墅设计图
本户型为三层独栋别墅,图纸包括平面图、立面图、剖面图、屋顶平面图、基础平面布置图、基础柱布置图、地梁层结构平面图、板筋平面布置图、电路开关布置图、插座布置图等,供参考!
带庭院三层别墅建筑全套施工图纸
带庭院三层别墅建筑全套施工图纸包括平面图、立面图、剖面图等。
三层别墅建筑施工全套图纸
三层别墅建筑施工全套图纸包括一层平面布置图、三层平面布置图、三层拆、建墙平面图、二层天花尺寸平面图、三层天花灯位尺寸平面图、一层天花灯具与地面物件关系平面图、
140平米三层农村别墅设计图(含建筑结构水电)
140平米三层农村别墅设计图,包括平面图、立面图、剖面图、屋顶平面图、剖面图、楼梯节点详图、楼梯平面、卫生间大样图、基础平面布置图、柱配筋平面图、梁、板配筋平面图
三层别墅建筑施工图纸(含水电结构施工图)
三层别墅建筑施工图纸(含水电结构施工图)包括门窗表及大样图、首层平面图、二层平面图、三层平面图、剖面图、屋顶平面图及大样图、立面图、楼梯详图、厨房、轴立面、卫生间详图、
首页
上一页
下一页
尾页