首页
首页
建筑图纸
别墅图纸
别墅图纸
乡村联排三层别墅建筑设计图纸
乡村联排三层别墅建筑设计图纸包括车库层平面图、一层平面图、二层平面图、三层平面图、立面图、室外台阶断面图、A-A剖面图等。
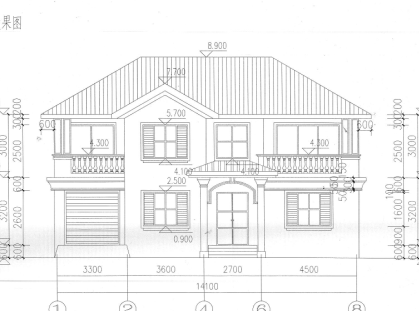
4层独栋别墅设计图
3层独栋别墅设计图,包括平面图、立面图、剖面图、屋顶平面图、基础平面图、板钢筋图、梁钢筋图、墙柱钢筋图等,供参考!
奢华三层别墅建筑施工图纸
奢华三层别墅建筑施工图纸包括大样图、一层平面图、二层平面图、三层平面图、屋顶平面图、立面图、剖面图等。
216平米三层别墅设计图纸
216平米三层别墅设计图纸,包括平面图、立面图、剖面图、屋顶平面图、门窗大样等,供参考!
三层别墅建筑施工全套图纸
三层别墅建筑施工全套图纸包括地下层平面图、首层平面图、二层平面图、a-a剖面图、半地下室平面图、屋顶封板平面图、立面图、2# 3#阳台平面图、2# 3#阳台正立面图、厕5平面图、
豪华二层别墅建筑设计全套图纸
豪华二层别墅建筑设计全套图纸包括地下室平面图、立面图、首层平面图、剖面图、二层平面图、天面平面图、坡屋顶洞口布置厨卫大样图、首层顶板结构平面图、基础剖面图、基础平面图、
豪华三层别墅建筑设计图纸
豪华三层别墅建筑设计图纸包括一層平面圖、二層平面圖、衛生間剖面大樣詳圖、三層平面圖、屋面平面圖、前立面圖、剖立面圖A-A、外部擋杆大樣詳圖、側立面圖、後立面圖等。
80平米一层别墅设计图纸(PDF格式)
80平米一层别墅设计图纸(PDF格式),包括平面图、立面图、剖面图、屋顶平面图、基础结构,结构平面,给水、排水系统图,配电平面图,配电系统图、防雷及接地平面等,供参考!
90平方米二层独栋别墅设计图纸
90平方米二层独栋别墅设计图纸,包括平面图、立面图、剖面图、屋顶平面图、基础结构,结构平面,给水、排水系统图,配电平面图,配电系统图等,供参考!
某二层会所建筑设计图纸
某二层会所建筑设计图纸包括一层平面图、二层平面图、屋顶平面图、南立面图、北立面图、东立面图等。
四套两层别墅建筑设计图纸
四套两层别墅建筑设计图纸包括一层平面图、二层平面图、西立面图、东立面图、北立面图、南立面图等。
172平米二层别墅设计图纸(PDF格式)
172平米二层别墅设计图纸(PDF格式),包括平面图、立面图、剖面图、屋顶平面图,基础结构,结构平面,给水、排水系统图,配电平面图,配电系统图、防雷及接地平面等,供参考!
150平米二层单家独院式别墅设计图纸(PDF格式)
图纸包括:建筑设计说明、一层平面图、二层平面图、屋顶平面图、正立面图、背立面图、左立面图、右立面图、门窗表、楼梯平面图、剖面图、节点详图
三套二层别墅建筑设计图纸
三套二层别墅建筑设计图纸包括一层平面图、二层平面图、屋顶层平面图、南立面图、西立面图、北立面图、地下层平面图、轴立面图、1-1剖面图等。
二层独栋别墅设计图(含建筑结构)
二层独栋别墅设计图,包括平面图、立面图、剖面图、屋顶平面图、架空层结构布置图、结构布置图、屋面层结构布置图、条基示意图、柱基示意图,排水系统图等,供参考!
联排三套三层别墅建筑设计图纸
联排三套三层别墅建筑设计图纸包括东立面图、1-1剖面图、西立面图、一层平面图、二层平面图、三层平面图、顶面平面图等。
213平方米二层别墅设计图
本工程为南北朝向,建筑共为二层,建筑高度6.450m,建筑面积213.5平米 。图纸包括平面图、立面图、剖面图、屋顶平面图等,供参考!
二层别墅建筑设计图纸
二层别墅建筑设计图纸包括东立面图、1-1剖面图、地下室平面图、一层平面图、二层平面图、屋顶平面图等。
二层独栋别墅设计图纸(含建筑结构水电)
二层独栋别墅设计图纸(含建筑结构水电),包括平面图、立面图、剖面图、屋顶平面图、基础平面图、基础顶~二层柱配筋图、板配筋图、梁配筋图、强电平面图、弱电平面图
某两层别墅建筑结构设计图纸
某两层别墅建筑结构设计图纸包括一层平面图、一层梁结构平面图、二层平面图、一层板结构平面图、屋顶平面图、基础结构平面图、①-⑦立面图、二层梁结构平面图、坡屋顶结构平面图、
首页
上一页
下一页
尾页