首页
首页
建筑图纸
别墅图纸
别墅图纸
二层别墅建筑设计图纸
二层别墅建筑设计图纸包括轴立面图、门窗详图、地下室平面图、一层平面图、二层平面图、1-1剖面图、节点详图(一)等
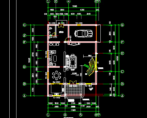
112平米两层别墅建筑设计图
112平米两层别墅建筑设计图,包括正立面图、一层平面图、二层平面图、基础面布置图,结构平面图,屋盖结构平面图等,供参考!
三层乡村别墅建筑设计图纸
三层乡村别墅建筑设计图纸包括地下室二层平面图、半地下室平面图、首层平面图、二层平面图、三层平面图、屋顶平面图、立面图、1-1剖面图、屋面板定位图、卫生间大样图、
133平米二层别墅建筑施工图
133平米二层别墅建筑施工图,包括立面图、剖面图、各层平面图、础梁平面图、板筋平面图、屋顶配筋图、天沟配筋图等,供参考!
194平米两层别墅建筑设计图
两层别墅建筑设计图,包括平面图,立面图,剖面图、屋顶平面图、结构平面图、板筋结构平面图等,供参考!
三层别墅建筑设计图纸(带结构图)
三层别墅建筑设计图纸(带结构图)包括一层平面图、立面图、结构平面图、梁结构施工图、鸟瞰图、透视图、屋面平面图、三层平面图等。
三层别墅建筑施工图纸
三层别墅建筑施工图纸包括首层平面图、二层平面图、门窗表及大样图、三层平面图、剖面图、屋顶平面图及大样图、立面图、楼梯详图、厨房、卫生间详图、详图等。
三套二层别墅建筑设计图纸
三套二层别墅建筑设计图纸包括一层平面图、二层平面图、南立面图、西立面图等。
三套别墅建筑设计图纸
三套别墅建筑设计图纸包括平面图、立面图等,供参考!
二层别墅建筑结构设计图纸(带效果图)
二层别墅建筑结构设计图纸(带效果图)包括剖面图1-1、B4型二层平面图、B4型一层平面图、E立面图、屋顶平面图、柱平面整体配筋图、楼面洞口加强示意图、卫生间楼板加强示意图、
某欧式二层别墅建筑设计图纸
某欧式二层别墅建筑设计图纸包括一层平面图、二层平面图、屋顶平面图、门洞内立面图、立面图、I-I剖面图、楼梯剖面图、楼梯二层平面图、剖面详图、室外台阶详图、汽车坡道详图等。
三层别墅建筑设计全套图纸
三层别墅建筑设计全套图纸包括架空层空调平面图、架空层空调平面图、首层空调平面图、二层空调平面图、标高空调平面图、超级多联系统示意图、地下室柱定位图、基础平面图、
别墅区建筑施工全套图纸
别墅区建筑施工全套图纸包括总平面图、首层平面图、二层平面图、屋顶平面图、立面图、剖面图、楼梯大样图、厨房、卫生间大样图、门窗大样图(一)、节点大样图(一)等。
二层别墅建筑设计图纸
二层别墅建筑设计图纸包括立面图、屋顶平面图、二层平面图、首层平面图等。
别墅区建筑设计图纸
别墅区建筑设计图纸包括底层平面图、门窗大样图、二层平面图、屋面平面图、楼梯间、卫生间放大平面图、立面图、1-1 剖面图、檐口节点大样图、节点大样图等。
七套二层别墅建筑设计图纸
七套二层别墅建筑设计图纸包括一层平面图、二层平面图、东立面图等。
花园三层别墅建筑施工图纸
花园三层别墅建筑施工图纸包括轴立面图、别墅立面图、别墅三层平面图、别墅二层平面图、1-1剖面图、别墅屋顶平面图等。
三层别墅建筑设计图纸
三层别墅建筑设计图纸包括活动室A立面图、活动室C立面图、客厅C立面图、餐厅A立面图、视听室A立面图、女卫生间A立面图、男卫生间B立面图、客厅D立面图、过道B立面图、
联排别墅建筑设计全套图纸
联排别墅建筑设计全套图纸包括散水大样图、入口踏步大样图、花瓶栏杆台阶详图、线脚详图、c-c剖面图、窗套立面图、露台泛水详图、阳台柱帽线脚剖面图、露台分户隔墙详图、
四层别墅建筑施工图纸
四层别墅建筑施工图纸包括屋顶平面图、 一层平面图、三层平面图、四层平面图、二层平面图、轴立面图、轴剖面图等。
首页
上一页
下一页
尾页