首页
首页
建筑图纸
别墅图纸
别墅图纸
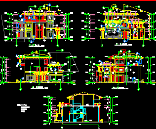
某别墅施工图
某别墅施工图包括平面图、立面图、剖面图、楼梯大样图、节点大样图、屋顶平面图等。供大家参考!
某别墅建筑施工图
某别墅建筑施工图包括平面图、立面图、剖面图、楼梯大样图、节点大样图、屋顶平面图等。供大家参考!
某别墅施工图
某别墅施工图包括平面图、立面图、剖面图、楼梯大样图、节点大样图、屋顶平面图等。供大家参考!
某别墅施工图
某别墅施工图包括平面图、立面图、剖面图、楼梯大样图、节点大样图、屋顶平面图等。供大家参考!
某独立小住宅施工图
某独立小住宅施工图包括平面图、立面图、剖面图、楼梯大样图、节点大样图、屋顶平面图等。供大家参考!
经典欧式别墅施工图
经典欧式别墅施工图包括平面图、立面图、剖面图、楼梯大样图、节点大样图、屋顶平面图等。供大家参考!
农村民居建筑施工图
农村民居建筑施工图包括平面图、立面图、剖面图、楼梯大样图、节点大样图、屋顶平面图等。供大家参考!
农村住宅建筑施工图
农村住宅建筑施工图包括平面图、立面图、剖面图、楼梯大样图、节点大样图、屋顶平面图等。供大家参考!
农居房建筑施工图
农居房建筑施工图包括平面图、立面图、剖面图、楼梯大样图、节点大样图、屋顶平面图等。供大家参考!
某古典别墅施工图
某古典别墅施工图包括平面图、立面图、剖面图、楼梯大样图、节点大样图、屋顶平面图、别墅一层给排水平面图、别墅二层给排水平面图、别墅屋面给排水平面图
某农村建房施工图
某农村建房施工图包括平面图、立面图、剖面图、楼梯大样图、节点大样图、屋顶平面图等。供大家参考!
独栋别墅施工图
独栋别墅施工图包括负一层平面图、一层平面图、二层平面图、屋顶平面图、立面图、楼梯大样图、构造大样图、门窗大样图
多层联排别墅施工图纸
多层联排别墅施工图纸包括平面图、立面图、剖面图、楼梯大样图、节点大样图、屋顶平面图等。供大家参考!
新农村别墅设计图
新农村别墅设计图包括基础平面布置图、一层柱平面布置图 、标高3.570m处结构平面图、标高3.570m处梁配筋图、标高6.570m处结构平面图、坡屋面结构平面图、楼梯结构图
某别墅施工图纸(含16套)
两层小别墅、风格多样、含立面图、平面图、效果图,供大家参考!
某别墅建筑施工图
某别墅建筑施工图包括平面图、立面图、剖面图、楼梯大样图、节点大样图、屋顶平面图等。供大家参考!
某豪华别墅建筑施工图
某豪华别墅建筑施工图包括平面图、立面图、剖面图、楼梯大样图、节点大样图、屋顶平面图等。供大家参考!
某花园别墅施工图
某花园别墅施工图包括平面图、立面图、剖面图、楼梯大样图、节点大样图、屋顶平面图等。供大家参考!
某花园别墅施工图
某花园别墅施工图包括平面图、立面图、剖面图、楼梯大样图、节点大样图、屋顶平面图等。供大家参考!
某花园别墅建筑施工图
某花园别墅建筑施工图包括平面图、立面图、剖面图、楼梯大样图、节点大样图、屋顶平面图等。供大家参考!
首页
上一页
下一页
尾页