首页
首页
建筑图纸
别墅图纸
别墅图纸
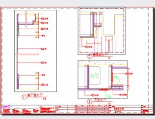
样板间B户型施工图纸
样板间B户型施工图纸:餐厅墙身大样图、天花大样图、窗廉盒大样图等等,本文为dwg格式,供大家参考!
会所施工图
会所施工图:会所地下层电位插座图、会所首层电位插座图、会所二层位插座图、会所二层间墙尺寸图等等,本文为dwg格式,供大家参考!
别墅样板房施工图纸
别墅样板房施工图纸:地下层电插座平面图、首层电插座平面图、二层平电插座平面图等等,本文为dwg格式,供大家参考!
私人别墅施工图纸
本套图纸包括结施图和建施图。本工程为私人别墅,三层砖混结构,建筑面积为628.503m2。结构图尤其详尽。
样板房施工图纸
样板房施工图纸:各区域大样图、镜面墙身直切面大样图、主人睡房大样图、睡房大样图、娱乐室大样图等等,本文为dwg格式,供大家参考!
ST9样板別墅施工图纸
ST9样板別墅施工图纸:墙面横剖面图、水池正立面图、水池侧刨立面图等等,本文为dwg格式,供大家参考!
ST5样板別墅施工图纸
ST5样板別墅施工图纸:视听室电视墙身大样图、样板房石材线条、工人房洗衣柜等等,本文为dwg格式,供大家参考!
别墅水电施工图纸
别墅水电施工图纸:一层平面图、二层平面图、地下室平面图等等,本文为dwg格式,供大家参考!
别墅施工图
别墅施工图包括平面图、立面图、剖面图等。供大家参考!
样板房施工图纸(英文版)
样板房施工图纸(英文版),本文为dwg格式,供大家参考!
样板房施工图纸(英文版)
样板房施工图纸(英文版),本文为dwg格式,供大家参考!
3栋D户型样板房施工图及实景
3栋D户型样板房施工图及实景:主人睡房立面图、主人浴室平面图、浴室立面图等等,本文为dwg格式,供大家参考!
会所施工图
会所施工图:首层电器插座布置图、首层地材平面及立面索引图、首层天花平面图、首层平面布置及家具编号图等等,本文为dwg格式,供大家参考!
高尔夫别墅样板间AA型施工图及实景
型首层平面布置图、型首层天花线路及开关布置图、型首层尺寸及门号分布图、型二层天花线路及开关控制图、型二层活动家私布置图等等,本文为dwg格式,供大家参考!
别墅施工图纸
别墅施工图纸:一楼起居室客卫、一楼儿童房卫生间、一楼儿童房、一楼客房卫生间、一楼父母房、一楼父母房卫生间等等,本文为dwg格式,供大家参考!
别墅C型施工图纸
别墅C型施工图纸:地下层餐厅、地下层客厅及电梯厅立面图、二层电梯厅及家庭厅、地下层厨房、三层主人书房等等,本文为dwg格式,供大家参考!
A户型-典雅豪华别墅施工图纸
A户型-典雅豪华别墅施工图纸:天花大样图、墙身大样图、窗帘盒大样图、等等,本文为dwg格式,供大家参考!
别墅施工图
别墅施工图:一层平面图、屋顶平面图、南立面图、一层平面图、二层平面图等等,本文为dwg格式,供大家参考!
别墅区方案设计图纸
别墅区方案设计图纸:底层平面图、一层平面图、二层平面图、三层平面图、联排别墅侧立面图、联排别墅拼接南立面图等等,本文为dwg格式,供大家参考!
别墅区方案设计图纸
别墅区方案设计图纸:底层平面图、一层平面图、二层平面图、三层平面图、联排别墅侧立面图、联排别墅拼接南立面图等等,本文为dwg格式,供大家参考!
首页
上一页
下一页
尾页