首页
首页
建筑图纸
别墅图纸
别墅图纸
某别墅工程建筑施工图
某别墅工程建筑施工图,本设计图应同有关各专业图纸密切配合施工,在未征得设计单位或者设计者同意时不得任意修改,供各位参考
某别墅工程建筑施工图
注:1、首层建筑占地面积为120.2平方米,2、夹层建筑面积为55.5平方米,3、总建筑面积为435.1平方米,备注:1.图中外墙、分户墙为180,室内隔墙为120.供各位参考
某别墅工程建筑施工图
2:本工程设计标高%%p0.000相当于绝对标高多少由现场确定,室内外高差0.150米,各层设计标高均系指楼地面完成后的建筑标高,屋面设计标高为结构面层标高.供各位参考
某别墅工程建筑施工图
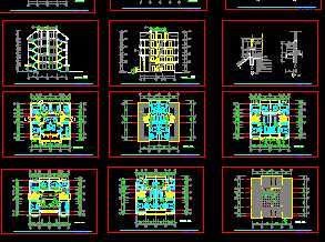
某别墅工程建筑施工图,包括二层结构平面图,阁楼层平面图,屋顶层平面图,一层平面图,二层平面图等,供各位参考
某别墅工程建筑施工图
某别墅工程建筑施工图,包括三层平面图,二层平面图,一层平面图,屋顶平面图等,供各位参考
某别墅工程建筑施工图
某别墅工程建筑施工图,包括一层平面图,二层平面图,屋面平面图,立面图等,供各位参考
某别墅工程建筑施工图
某别墅工程建筑施工图,包括南立面图,北立面图,剖面图,底层平面图,夹层平面图,二层平面图,四层平面图等,供各位参考
某别墅工程建筑施工图
某别墅工程建筑施工图,现浇钢筋混凝土板渗5%防水剂。现浇钢筋混凝土板面纵横各扫纯水泥浆一度。供各位参考
某别墅工程建筑施工图
某别墅工程建筑施工图,包括平面图,立面图,剖面图等,供各位参考
某别墅工程建筑施工图
某别墅工程建筑施工图,包括平面图,立面图,剖面图等,供各位参考
某别墅工程建筑施工图
某别墅工程建筑施工图,包括平面图,立面图,剖面图等,供各位参考
某别墅工程建筑施工图
某别墅工程建筑施工图,包括正立面图,右侧立面图,一层平面,二层平面等,供各位参考
某别墅工程建筑施工图
某别墅工程建筑施工图,包括平面图,立面图,剖面图等,供各位参考
某别墅工程建筑施工图
某别墅工程建筑施工图,本工程为三层楼为框架结构,外墙采用灰砂砖墙体180厚,内墙采用灰砂砖墙体120厚,供各位参考
某别墅工程建筑施工图
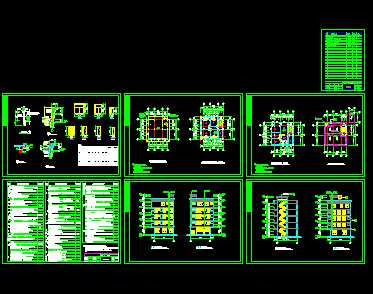
某别墅工程建筑施工图,包括A1型三层平面图,A1型地下层平面图,A1型屋顶平面图,A1型一层家具布置示意图,A1型二层家具布置示意图,正立面图等,供各位参考
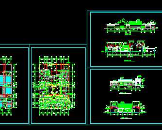
某欧式别墅建筑施工图
某欧式别墅建筑施工图1)建筑名称:独立小住宅,2)建筑面积:402.9平方米。3)建筑工程耐久性等级:二级(50年),4)建筑类别和防火等级:二类,二级。供各位参考
某别墅工程建筑施工图
某别墅工程建筑施工图,包括立面图等,供各位参考
某别墅工程建筑施工图
某别墅工程建筑施工图,抗震烈度要求,本工程为六度抗震设防,属丙类建筑。设计合理使用年限为50年。结构形式为框架建筑场地类别见地质勘察报告。供各位参考
某别墅工程建筑施工图
某别墅工程建筑施工图,包括一层平面图,夹层平面图,二层平面图,三层平面图。立面图等,供各位参考
某花园别墅建筑施工图
某花园别墅建筑施工图,总建筑面积:348m2.建筑层数:地上二层.抗震设防烈度8度,耐火等级二级,屋面防水等级二级,建筑设计耐久年限为50年.供各位参考
首页
上一页
下一页
尾页