首页
首页
建筑图纸
别墅图纸
别墅图纸
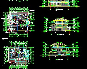
某经典别墅施工图
某经典别墅施工图包括平面图、立面图、剖面图等。供大家参考!
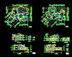
三层高档别墅施工图
三层高档别墅施工图包括平面图、立面图、剖面图等。供大家参考!
古典别墅施工图
古典别墅施工图包括基础平面布置图及大样、基础梁平面布置图及大样、一,二层结构柱布置图、屋面板配筋图、一层楼(屋)面板配筋图、一层纵,横向框架梁配筋图及大样
二层别墅施工图
二层别墅施工图包括平面图、立面图、剖面图等。供大家参考!
自建别墅装修设计图
自建别墅装修设计图包括一层平面设计图、一层拆墙图、一层砌墙图、一层天花布置图、一层地面材质图、一层插座布置图、一层水路布置图、一层开关控制图、二,三层平面设计图等
别墅施工图
别墅施工图包括首层平面图、二层平面图、屋顶平面图、剖面图 、立面图、大样图、构造图等
多层别墅建筑施工图
多层别墅建筑施工图包括平面图、立面图、剖面图等。供大家参考!
别墅建筑施工图
别墅建筑施工图包括平面图、立面图、剖面图等。供大家参考!
独立别墅施工图
独立别墅施工图包括一层平面图、二层平面图、三层平面图、屋顶平面图、立面图、立面图及节点详图、剖面图及节点详图、别墅门窗详图及门窗表
别墅施工图
别墅施工图包括平面图、立面图、剖面图等。供大家参考!
精美别墅设计图
精美别墅设计图包括平面图、立面图、剖面图等。供大家参考!
某别墅施工图
某别墅施工图包括平面图、立面图、剖面图等。供大家参考!
豪华三层别墅建筑施工图
豪华三层别墅建筑施工图包括车库层平面图、一层平面图、二层平面图、三层平面图、屋面平面图、3#楼梯平面图、壁炉大样、2#楼梯平剖面图,楼梯大样、卫生间大样等
豪华公馆式别墅施工图
豪华公馆式别墅施工图 包括平面图、立面图、剖面图等。供大家参考!
豪华别墅施工图
豪华别墅施工图包括平面图、立面图、剖面图等。供大家参考!
豪华别墅施工图
豪华别墅施工图包括首层平面、首层平面、二层平面、总平面图、三层平面
豪华别墅设计图
豪华别墅设计图包括平面图、立面图、剖面图等。供大家参考!
超大别墅施工图
超大别墅施工图包括平面图、立面图、剖面图等。供大家参考!
钢结构别墅建筑施工图
钢结构别墅建筑施工图包括平面图、立面图、剖面图等。供大家参考!
高档别墅建筑施工图
高档别墅建筑施工图包括平面图、立面图、剖面图等。供大家参考!
首页
上一页
下一页
尾页