首页
首页
建筑图纸
别墅图纸
别墅图纸
小别墅施工图
小别墅施工图包括平面图、立面图、剖面图等。供大家参考!
某别墅施工图纸
某别墅施工图纸包括平面图、立面图、剖面图等。供大家参考!
某别墅施工图
某别墅施工图包括平面图、立面图、剖面图等。供大家参考!
某别墅设计图
某别墅设计图包括平面图、立面图、剖面图等。供大家参考!
某别墅样板设计图
某别墅样板设计图包括平面图、立面图、剖面图等。供大家参考!
某别墅施工图
某别墅施工图包括平面图、立面图、剖面图等。供大家参考!
某别墅施工图
某别墅施工图包括平面图、立面图、剖面图等。供大家参考!
农村私人住宅施工图
本工程为5层农村私人住宅楼,内有外墙防潮及散水做法,内墙防潮做,散水伸缩缝大,瓦屋面封檐大,女儿墙大样,厨房卫生间大样图等
别墅施工图
别墅施工图包括平面图、立面图、剖面图等。供大家参考!
某别墅施工图纸
某别墅施工图纸包括平面图、立面图、剖面图等。供大家参考!
某住宅楼建筑施工图
某住宅楼建筑施工图包括一层平面图、二层平面图、三至五层平面图、屋顶层平面图、梯间屋顶平面图、立面图、楼梯大样详图、剖面图、节点详图等
改建别墅平面图
改建别墅平面图,供大家参考!
别墅结构施工图
别墅结构施工图包括结构模板图、屋面结构模板图、第1层梁平面图、屋面梁平面图、楼梯大样图、构件详图等
乡村独栋别墅施工图
乡村独栋别墅施工图包括平面图、立面图、剖面图等。供大家参考!
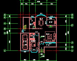
某别墅施工图
某别墅施工图包括二层平面图、首层平面图、南立面图、北立面图等
新农村别墅式新型住宅施工图
新农村别墅式新型住宅图,包括四个方向立面图,各层平面图,剖面图等。
三层小别墅施工图
三层小别墅施工图包括平面图、立面图、剖面图等。供大家参考!
别墅平面图
别墅平面图,供大家参考!
别墅施工图
别墅施工图包括平面图、立面图、剖面图等。供大家参考!
别墅施工图纸
别墅施工图纸包括平面图、立面图、剖面图等。供大家参考!
首页
上一页
下一页
尾页