首页
首页
建筑图纸
别墅图纸
别墅图纸
某别墅建筑施工图(带效果图)
某别墅建筑施工图(带效果图)包括负一层平面图、一层平面图、二层平面图、屋顶平面图、三层平面图、屋顶平面图、西立面图、南立面图、北立面图、东立面图等
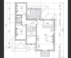
某别墅建筑施工图(带效果图)
某别墅建筑施工图(带效果图)包括建筑设计说明、一、二层平面、1-1剖面、楼梯大样2、门窗大样及门窗表、卫生间大样及节点详图A、3.570m、6.570m楼板配筋图
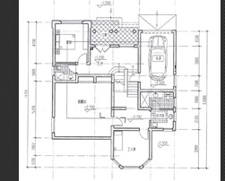
某别墅建筑施工图(带效果图)
某别墅建筑施工图(带效果图)包括I-I剖面图、II-II剖面图、屋顶平面图、一层平面图、二层平面图、西立面图、南立面图、北立面图、东立面图
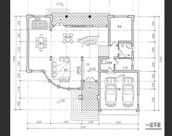
某别墅建筑施工图(带效果图)
某别墅建筑施工图(带效果图)包括正立面图、右侧立面图、1-1剖面图、2-2剖面图、一层平面图、二层平面图、三层平面图
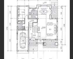
某别墅建筑施工图(带效果图)
某别墅建筑施工图(带效果图)包括建筑设计总说明、檐口二大样、一层平面图、台阶大样、轴立面图、阳台大样、牵边大样、LT三层平面图、卫生间2平面图、M1详图等
某别墅建筑施工图(带效果图)
某别墅建筑施工图(带效果图)包括地下室平面、一层平面图、二层平面图、西立面图、南立面图、剖面图
某别墅建筑施工图(带效果图)
某别墅建筑施工图(带效果图)包括一层平面图、二层平面图、三层平面图、屋顶平面图
某别墅建筑施工图(带效果图)
某别墅建筑施工图(带效果图)包括一层平面图、二层平面图、三层平面图、屋顶平面图
某别墅建筑施工图(带效果图)
某别墅建筑施工图(带效果图)包括一层平面图、二层平面图、三层平面图、屋顶平面图
某别墅建筑施工图(带效果图)
某别墅建筑施工图(带效果图)包括一层平面图、二层平面图、立面图、剖面图
某别墅建筑施工图(带效果图)
某别墅建筑施工图(带效果图)包括立面图、一层平面图、二层平面图、剖面图
某别墅建筑施工图(带效果图)
某别墅建筑施工图(带效果图)包括正(南)立面图、一层平面图、二层平面图、1-1 剖面图、屋顶平面图、侧(东)立面图
某别墅建筑施工图(带效果图)
某别墅建筑施工图(带效果图)包括轴立面图、屋面排水示意图、剖面图、一层平面图、二层平面图
某别墅建筑施工图(带效果图)
某别墅建筑施工图(带效果图)包括地下室平面、底层平面、二层平面、立面图、1-1层剖面图、车库层平面、1-1剖面图、屋顶平面等
某别墅建筑施工图(带效果图)
某别墅建筑施工图(带效果图)包括褐色仿石面砖、剖面图、一层平面图、二层平面图、西立面图、南立面图、北立面图、东立面图
某别墅建筑施工图(带效果图)
某别墅建筑施工图(带效果图)包括地下室平面、底层平面、二层平面、立面图、屋顶平面、1-1剖面图、a-a层剖面图、立面图2等
某别墅建筑施工图
某别墅建筑施工图包括轴立面图、屋顶平面图、 2-2剖面图、一层平面图、二层平面图
某别墅建筑施工图(带效果图)
某别墅建筑施工图(带效果图)包括图纸目录、建筑设计说明、建筑构造统一说明、二层平面图、一层平面图、三层平面图、屋面平面图、门窗表、轴立面图,、1-1剖面图、门窗大样等
某别墅建筑施工图(带效果图)
某别墅建筑施工图(带效果图)包括屋顶平面图、2-2剖面图、1-1剖面图、侧立面图、背立面图、一层平面图、二层平面图
某别墅建筑施工图(带效果图)
某别墅建筑施工图(带效果图)包括一层平面图、二层平面图、屋顶平面图、立面图、南立面图
首页
上一页
下一页
尾页