首页
首页
建筑图纸
别墅图纸
别墅图纸
某别墅样板房竣工图
某别墅样板房竣工图,包括标准层屋面板配筋图,标准层屋面平面图,门头大样图,3.00m平面板配筋图,屋面平面图,6.00m平面板配筋图,户型号一层平面图等,供各位参考
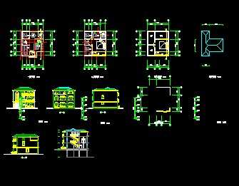
某别墅样板房竣工图
某别墅样板房竣工图,包括平面图,立面图,大样图,剖面图等,供各位参考
某宾馆别墅建筑施工图
某宾馆别墅建筑施工图,包括一层平面图,屋顶平面图,二层平面图,立面图,室内装修做法一览表等,供各位参考
某别墅工程建筑施工图
设计年限50年,图中所注尺寸除标高及总图以米计外,其余均以毫米为单位,所注标高除顶层屋面标高系指屋面结构板面以及门窗洞口系指结构面外,其余均为建筑面层标高。
某叠加别墅建筑方案图
某叠加别墅建筑方案图,包括A型别墅首层平面,A型别墅二层平面,B型别墅首层平面,B型别墅二层平面等,供各位参考
某度假别墅建筑施工图
某度假别墅建筑施工图,包括平面图,立面图,剖面图等,供各位参考
某高档别墅建筑施工图
设计使用年限:50年;建筑结构安全等级:二级;建筑耐火等级:二级;抗震设防烈度:六度;屋面防水等级:II级,防水层设计使用年限15年。供各位参考
某高档别墅建筑设计图
包括施工平面位置图,建筑做法总说明,门窗表及其立面,一层平面图,二层平面图,三层平面图,屋顶平面图,地下室平面图,正立面图,背立面图等,供各位参考
某豪华别墅建筑施工图
某豪华别墅建筑施工图,建筑层数:三层(包括底层)层高:底层:3.50M,一层:4.50M,三层:3.50M,结构形式:异形柱框架结构,供各位参考
某花园别墅建筑施工图
某花园别墅建筑施工图,包括车库入口处集水沟做法,铸铁盖板详图,楼梯踏步及扶手栏杆,立面图,地下层平面图,二层平面图等,供各位参考
某花园别墅建筑施工图
凡施工及验收规范(如屋面、砌体、地面、木结构、门窗等)已对建筑物所用材料、规格、施工要求及验收规范等有规定者,本说明不再重复,均按有关现行规范执行。
某休闲别墅建筑结构施工图
建筑层数:地上2层,地下1层,建筑高度9.60米。建筑防火:耐火等级二级。屋面防水等级Ⅲ级,两道防水设防,防水层合理使用年限10年。结构型式为框架结构。供各位参考
某英式别墅建筑施工图
某英式别墅建筑施工图,包括轴展开立面图,地下室夹层平面图,地下室平面图,一层平面图,南立面图,北立面图,东立面图,西立面图,二层平面图等,供各位参考
某木结构别墅设计方案图
某木结构别墅设计方案图,包括一层平面图,二层平面图,屋顶平面图等,供各位参考
某别墅工程建筑施工图
某别墅工程建筑施工图,包括一层平面图,二层平面图,西立面图,南立面图,北立面图,东立面图,屋面平面图,门窗表等,供各位参考
某温泉度假别墅建筑设计图
某温泉度假别墅建筑设计图,包括二层平面图,一层平面图,北立面图,南立面图,四层平面图,地下层平面图等,供各位参考
某欧式别墅建筑方案图
某欧式别墅建筑方案图,包括一层平面图,二层平面图,屋顶层平面图,南立面,北立面,东立面,西立面等,供各位参考
某欧式别墅建筑施工图
某欧式别墅建筑施工图,单体建筑为别墅,总共三层半,其中:地上建筑面积443.9m2,地下部分建筑面积56.1m2,建筑最大跨度8.500m,供各位参考
某欧式别墅建筑施工图
某欧式别墅建筑施工图,包括一层平面图,二层平面图,三层平面图,屋顶平面图,立面图,剖面图等,供各位参考
某别墅建筑结构施工图
某别墅建筑结构施工图.本工程室内外高差为450,室内±0.000标高请建设单位根据周围地形自行确定,图中标注尺寸除标高以米为单位外,其余均以毫米为单位。供各位参考
首页
上一页
下一页
尾页