首页
首页
建筑图纸
别墅图纸
别墅图纸
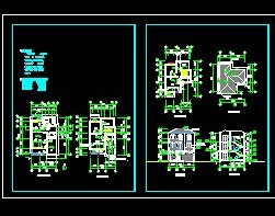
某别墅建筑施工图(效果图)
某别墅建筑施工图(效果图)包括窗台线角大样、底层平面图、二层平面图、门窗表、入口门廊大样、天面平面图、三层平面图、3-3剖面、西立面图、南立面图、北立面图、东立面图等
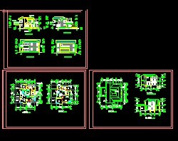
某别墅区建筑施工图(效果图)
某别墅区建筑施工图(效果图)包括西立面图、南立面图、北立面图、东立面图、一层平面图、二层平面图、三层平面图、总平面图等
某别墅建筑施工图
某别墅建筑施工图包括二层平面、阁楼层平面、首层平面、首层平面2、二层平面2、立面图、南立面图、北立面图、东立面图
某别墅区规划及单体设计方案图
某别墅区规划及单体设计方案图包括一层平面图、二层平面图、三层平面图、规划总平面图、半地下层平面图等
某别墅建筑结构图
某别墅建筑结构图包括目录、设计说明、门窗表、屋顶平面图、阁楼平面图、夹层平面图、东西南北立面图、楼梯平面详图、2-2剖面图、一层平面图、二层平面图
某村镇小康别墅建筑施工图(带效果图)
某村镇小康别墅建筑施工图(带效果图)包括屋顶平面图、一层平面图、二层平面图、三层平面图、西立面图、南立面图、北立面图、东立面图、建筑设计总说明
某别墅建筑施工图(带效果图)
某别墅建筑施工图(带效果图)包括别墅(B)负一层平面、一层平面图、二层平面图、总平面、别墅立剖面、沿街商业立面、沿街商业平面
多层别墅建筑施工图纸
多层别墅建筑施工图纸包括A户型一层平面放大图、A户型二层平面放大图、B户型阁楼层平面放大图、C户型一层平面放大图、平立剖面图、节点图等
多层别墅建筑施工图(带效果图)
多层别墅建筑施工图(带效果图)包括首层平面图、左侧立面、正立面图、右侧立面、背立面图、三层平面图、屋顶平面图
多套别墅建筑施工图
多套别墅建筑施工图包括屋顶平面图、屋顶平面图2、屋顶平面图3、一层平面图、二层平面图、一层平面图2、二层平面图2、西立面图、南立面图、北立面图、东立面图等
某别墅户型建筑施工图
某别墅户型建筑施工图包括A2-2一层平面图、A2-1一层平面图、A2-1一层平面图、南立面、东立面、一层平面图、二层平面图、三层平面图等
某山庄别墅建筑施工图
某山庄别墅建筑施工图包括 首层平面、二层平面、三层平面、屋顶平面、剖面、楼梯大样图、西立面图、南立面图、北立面图、东立面图等
豪华别墅建筑全套施工图
豪华别墅建筑全套施工图包括图纸目录、总平面图、首层平面图、二层平面图、屋顶平面图、屋顶封板平面图、半地下室平面图、细部大样图、厨厕大样图、立面细部大样图
并联别墅建筑施工图
并联别墅建筑施工图包括首层平面图、剖面图、大样图、西立面图、南立面图、北立面图、东立面图、二层平面图、三层平面图、屋顶平面图等
某独栋别墅设计施工图
某独栋别墅设计施工图包括2-2剖面图、图纸目录、建筑设计说明、建筑构造统一说明、大样图,、门窗大样、门窗表、一层平面图、二层平面图、三层平面图、屋顶平面图
某别墅建筑施工图
某别墅建筑施工图包括建筑做法说明、暗埋式散水、入口檐口大样、室内平台栏杆翻口大样、平台大样、壁炉立面详图、屋面泛水大样、地下室平面图、一层平面图、二层平面图
某办公别墅建筑施工图
某办公别墅建筑施工图包括基础平面、夹层坡屋顶板结构平面、说明、楼梯钢筋表、卫生间、厨房详图、二层平面图、一层平面图、夹层平面图、屋顶平面图等
某别墅建筑结构图
某别墅建筑结构图包括基础平面图、-1-3结构层墙柱轴线定位及截面变化图、柱截面型式、说明、基础梁钢筋图、二层梁钢筋图、三层梁钢筋图、顶层板钢筋图、二层板钢筋图等
某别墅单体设计方案图
某别墅单体设计方案图包括负一层平面图、剖面图、 背立面图、 侧立面图、 正立面图、一层平面图、二层平面图、三层平面图等
某郊区别墅单体设计方案图
某郊区别墅单体设计方案图包括A-A'剖面图、一层平面图、二层平面图、三层平面图、西立面图、南立面图、北立面图、东立面图等
首页
上一页
下一页
尾页