首页
首页
建筑图纸
别墅图纸
别墅图纸
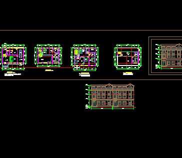
某别墅装饰施工图
某别墅装饰施工图包括、一层平面图、二层平面图、三层平面图、屋顶平面图、立面图、剖面图
某别墅装修设计图
某别墅装修设计图包括一楼天棚设计方案、二楼平面布置图、一楼平面布置图、二楼天棚设计方案、剖面图、立面图
小别墅建筑设计方案图
小别墅建筑设计方案图包括一层平面图、二层平面图、三层平面图、南立面、西立面、剖面图
别墅室内装修设计图纸
别墅室内装修设计图纸包括二楼次卧室1A立面、二楼书房B立面、一层平面图、二层平面图、三层平面图、立面图、剖面图等
某别墅全套装修施工图
某别墅全套装修施工图包括一层大厅侧立面图、一层大厅正立面图、一层大厅侧立面图、三四楼客厅装饰柜立面图、一楼佣人房床铺立面图、一楼佣人房衣柜、主卧更衣室立面图
别墅装修设计方案图
别墅装修设计方案图包括 一层平面图、正立面图、侧立面图、公卫剖立面图、次卧立面图、电视墙立面图、 二层平面图、 三层平面图、设计说明等
经典别墅装修施工图
经典别墅装修施工图包括首层平面布置图、首层天花布置图、三层天花布置图、首层开关插座图、三层开关插座图、二层平面布置图、四层天花布置图、二层开关插座图
某别墅设计装修设计图
某别墅设计装修设计图包括别墅一层原始图、别墅一层梁位图、别墅一层平面图、别墅一层吊顶图、别墅一层材质图、别墅一层开关图、别墅夹层平面图、别墅夹层开关图
某住宅区别墅装修设计图
某住宅区别墅装修设计图包括首层平面布置图、首层天花平面布置图、二层平面布置图、二层水电布置图、顶层平面布置图、顶层水电布置图、首层客厅背景墙造型大样图
别墅装修全套设计图
别墅装修全套设计图包括一层平面布置图、一层平面布置图2、二层平面布置图、三层平面布置图、一层平面布置图3、三层儿子房O立面、B15/16型别墅铺贴材料
别墅装修设计施工图
别墅装修设计施工图包括原始平面图、平面布局布置图、天棚镜像图、冷热水布置图、插座末端布置图、尺寸定位图、立面索引图、A立面图、C立面图、G立面图、A立面图等
别墅装修施工图
别墅装修施工图包括地下层立面索引图、一层立面索引图、地下层地面布置图、一层地面布置图、二层地面布置图、一层平面布置图、二层平面布置图、主卧室顶面尺寸图
别墅室内外装修图
别墅室内外装修图包括别墅首层平面图、别墅二层平面图、别墅首层平面设计图、别墅二层设计平面图、别墅三层设计平面图、陈先生别墅首层总平面设计图、别墅二层铺贴分布图
别墅室内装修全套图
别墅室内装修全套图包括一层餐厅C墙立面图、一层D墙立面图、一层电视背景墙立面图、一层原始平面图、二层原始平面图、二层次卧衣柜立面图、小孩房立面图、二层平面布置图
某花园别墅中式装修图
某花园别墅中式装修图包括二层墙体拆除图、二层墙体定位图、一层墙体拆除图、一层墙体定位图、二层原结构平面图、裤架示意图、袜子、小件物盒示意图、父母房B向立面图
别墅装修设计图
别墅装修设计图包括首层平面图、二层平面图、首层天花图、二层天花图、二层砌筑图、二层家私图、首二层卧室卫生间洁具图、首层过厅A向立面图、首层过厅D向立面图
别墅装修方案图
别墅装修方案图包括 一层平面布置图、 二层顶面布置图、三层平面布置图、 一层顶面布置图2、餐厅、过道立面展开图、客厅立面展开图、旋转楼梯立面解析图、老人房立面展开图
别墅装饰设计方案图
别墅装饰设计方案图包括一层天棚布置图、二层天棚布置图、三层天棚布置图、一层原始平面图、一层天棚布置尺寸图、二层天棚布置尺寸图、三层天棚布置尺寸图、三楼电路及开关布置图
别墅装修设计方案图
别墅装修设计方案图包括半地下室电位示意图、首层电位示意图、二层电位示意图、三层电位示意图、三层阁楼电位示意图、半地下室顶面布置图、首层顶面布置图、二层顶面布置图
多层别墅家装设计图
多层别墅家装设计图包括主卧室(A)B立面、女孩房(B)A立面、起居室A立面、吧台剖面图、起居室B立面、佛龛正立面、主卧室(B) D立面、主卧室(B)B立面等
首页
上一页
下一页
尾页