首页
首页
建筑图纸
别墅图纸
别墅图纸
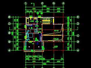
某三层别墅建筑施工图
内部功能有:客厅、卧室、厨房、卫生间、餐厅、露台….图纸包含:建筑的平面、立面、剖面、墙身大样、楼梯大样、…….共14张图纸
某别墅工程建筑施工图
内部功能有:客厅、卧室、厨房、卫生间、书房……图纸包含;建筑的平面、立面、剖面、门窗表、卫生间大样、…….共14张图纸,供各位参考
某别墅建筑工程施工图
内部功能有:客厅、卫生间、餐厅、卧室、主人房、书房、餐厅.图纸包含:建筑的本身的平面、立面、剖面、门窗表、栏杆大详图、女儿墙大详图共四张图纸
某三层别墅建筑工程施工图
功能包括:车库、门厅、客厅、厨房、餐厅、卧室、卫生间等等,图纸包括:说明、平立剖、大样共5张,供各位参考
某别墅建筑工程设计图
一套较全面的小别墅建筑设计图纸(平、立面图,节点图,材料表共12张图纸),内容齐全,供各位参考
某度假别墅建筑设计方案图
建筑为二层,内部功能有:客厅、卧室、餐厅、卫生间、厨房、……图纸包含:建筑的平面、立面、剖面、楼梯大样…….共4张图纸,供各位参考
某别墅建筑方案设计图
图纸包含:建筑的平面、立面、剖面、门窗表、女儿墙大详图、门廊大样图、空调位大详图、檐口大图、.....共5张图纸
某别墅建筑方案设计图
内部功能有:客厅、卧室、厨房、卫生间、餐厅、书房、储藏室.....图纸包含:建筑的平面、立面、剖面、设计说明、墙身大样、卫生间大样.....共10张图纸
某别墅建筑工程施工图
某别墅建筑工程施工图,包括设计与构思、门编号表,四至平面图,首层平面图,二层平面图,三层平面图,屋面平面图,正立面图侧立面图等
某别墅建筑工程方案图
本项目为一单体别墅,地下室2.6米,首层层高3.2米,二、三层2.8米,共三层,砖混结构,建筑面积240.2平方米.
某别墅建筑设计方案图
功能包括:车库、设备房、储藏室、工人房、会客室、厨房、客房、餐厅、卧室、活动室、工作间等等,图纸:说明、平立剖、大样共12张,供各位参考
某二层别墅建筑结构施工图
客厅、佣人房、餐厅、厨房、卧室、活动室、露台、书房.....图纸包含:建筑的平面、立面、剖面、梁平面配筋图、....共10图纸。
某别墅工程设计施工图
图纸包含:建筑和结构两部分,主要有:建筑的平面、立面、剖面、节点大样、楼梯大样图、门窗大样......共约20张图纸
某二层别墅建筑工程施工图
建筑为二层,内部功能有:客厅、卧室、厨房、卫生间、餐厅、…….图纸包含:建筑和结构两部分,共5张图纸
某别墅建筑工程施工图
建筑为二层,内部功能有:客厅、卧室、厨房、卫生间、餐厅、…….图纸包含:建筑和结构两部分,共5张图纸,供各位参考
某别墅工程建筑结构施工图
图纸包含:建筑的平面、立面、剖面、设计说明、门窗规格数量表、各层结构、大样节点......共17张图纸
某北方二层别墅建筑工程施工图
本套图纸包括各层建筑平面、立面、剖面图、楼梯间详图、墙身大样、檐口作法等,共6张图纸设计功能包括:厨房、卧室、客厅等。
某3层别墅建筑施工图
工程建筑结构形式为:砖混结构、层数为:3层、高度为:12米。本套图纸包括工程作法、各层建筑平面、立面、剖面图、墙身大样、檐口作法等,共4张图纸
美式风格别墅建筑施工图
美式风格别墅建筑施工图,包括屋顶平面图,一层平面图,立面图,卫生间详图,楼梯详图,二层平面图,节点详图等,供各位参考
某三层别墅建筑结构施工图
工程建筑面积为:约250平方米、结构形式为:砖混结构、层数为:三层、高度为:8.7米本套图纸包括各层建筑平面、立面、剖面图等,还包含了结构施工图,共9张图纸
首页
上一页
下一页
尾页