首页
首页
建筑图纸
建筑规划图
建筑规划图
某住宅小区自行车车棚施工图
某住宅小区自行车车棚施工图,内容详细,供各位参考
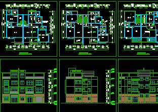
某住宅小区建筑施工图
建筑层数及建筑高度:三层;总高度10.50m,建筑工程等级:三级,结构形式:三层砖混,抗震设防:七度第一组,耐火等级:二级,屋面防水等级:三级
某住宅小区建筑设计户型方案图
某住宅小区建筑设计户型方案图,内容详细,供各位参考
某住宅小区建筑施工图
某住宅小区建筑施工图1.本项建筑等级为三级。使用年限为50年。抗震设防烈度六度。2.本项建筑以主体结构确定的耐火等级为二级。供各位参考
某住宅小区建筑施工图
木材面油漆:木门内侧均刷底油一道,淡黄色调和漆二遍,木门外侧均刷底油一道,橙黄色调和漆二遍,金属面油漆:金属件应先除锈,刷防锈漆二遍,面刷银粉漆二道.
某住宅小区规划设计图
某住宅小区规划设计图,内容详细,供各位参考
某住宅工程平面设计图
某住宅工程平面设计图,内容详细,供各位参考
某住宅工程建筑方案图
某住宅工程建筑方案图,包括平面图,立面图,剖面图等,供各位参考
某住宅小区会所建筑施工图
某住宅小区会所建筑施工图,包括平面图,立面图,剖面图等,供各位参考
某住宅楼工程建筑平面图
某住宅楼工程建筑平面图,包括平面图等,供各位参考
某住宅小区会所建筑设计图
所有门与开启方向一侧墙面立平,塑钢门带窗与墙中线立平(注明者除外)。门窗五金除注明者外均按有关标准图所规定的零件配齐。
某综合楼工程建筑施工图
某综合楼工程建筑施工图,包括平面图,立面图,剖面图等,供各位参考
某一梯三户住宅户型平面图
某一梯三户住宅户型平面图,内容详细,供各位参考
某一梯三户住宅户型平面图
某一梯三户住宅户型平面图,内容详细,供各位参考
某住宅楼工程建筑设计图
某住宅楼工程建筑设计图,包括平面图,立面图,剖面图等,供各位参考
某住宅楼工程建筑设计图
某住宅楼工程建筑设计图,内容详细,供各位参考
某沿街多层住宅楼立面方案扩初图
某沿街多层住宅楼立面方案扩初图,内容详细,供各位参考
某宿舍综合楼建筑施工图
本工程按6度地震烈度,凡预埋的钢木构件均应作防腐处理。请配合水,电等有关专业图纸施工。装饰工程未尽事宜按现行施工验收规范。防火等级二级,供各位参考
某住宅楼工程建筑施工图
某住宅楼工程建筑施工图,本建筑为6+1住宅建筑,建筑气候区划分为夏热冬冷地区,划分区为三区,耐火等级为二级建筑,使用年限为50年。供各位参考
某住宅小区修建性详细规划图
某住宅小区修建性详细规划图,内容详细,供各位参考
首页
上一页
下一页
尾页