首页
首页
建筑图纸
建筑规划图
建筑规划图
某住宅楼工程建筑施工图
某住宅楼工程建筑施工图1.本设计变更是应甲方要求而修改的,原设计立面及立面线条和相应门窗以次变更为准,其未变部分以按原设计图施工。2.图中粗实线为空心砖墙;
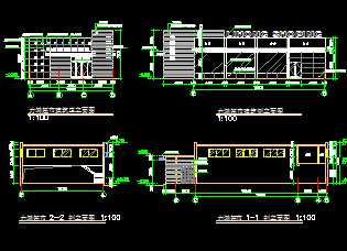
某超市综合楼建筑设计图
某超市综合楼建筑设计图,包括平面图,立面图,剖面图等,供各位参考
某超市工程建筑设计图
某超市工程建筑设计图,内容详细,供各位参考
某综合楼建筑施工图
某综合楼建筑施工图,包括平面图,立面图,剖面图等,供各位参考
某底商住宅楼建筑设计图
某底商住宅楼建筑设计图,包括平面图,立面图,剖面图等,供各位参考
某宾馆设计施工图
某宾馆设计施工图,由于屋面汇水面积很大,采用普通排水方式难以满足要求,设计时采用虹吸式屋面雨水排放系统,并由专业厂家进行深化设计。供各位参考
某综合楼地下室建筑施工图
某综合楼地下室建筑施工图,本工程战时为六级二等人员掩蔽部,建筑面积为1980M2,为一个防护单元,防化丙级,抗震等级三级,合理使用年限50年。掩蔽人数:1000人。
某娱乐城建筑方案图
某娱乐城建筑方案图,包括平面图,立面图,剖面图等,供各位参考
某办公楼建筑施工图
某办公楼建筑施工图,本图根据提供测量图进行绘制。图中所注坐标值及标高均以米计并精确到厘米。图中建筑控制座标均指建筑外墙皮。供各位参考
某餐厅设计施工图
建筑面积:2626.86M2.建筑结构安全等级:二级.耐久年限:50年.建筑层数:一层(内有夹层一层).地上总高度:9.000M(室外地面女儿墙顶面).抗震设防烈度:按7度(第一组0.15g):
某餐厅设计建筑图
建筑类别为二类.耐火等级为二级.抗震设防烈度6度.设计合理使用年限50年.结构形式为一层框架结构.屋面防水等级Ⅲ级.建筑占地面积895平方米.建筑面积约895平方米.建筑总高度4.700M.
某餐厅工程平面施工图
某餐厅工程平面施工图,内容详细,供各位参考
某餐厅工程建筑施工图
三层砖混结构。建筑主体高12。95m,局部13.69m。建筑面积6116平方米。本工程为二类建筑,抗震设防烈度为七度,耐火等级为二级,建筑使用年限为50年。供各位参考
某餐厅建筑设计方案图
某餐厅建筑设计方案图,内容详细,供各位参考
某餐厅建筑方案设计图
某餐厅建筑方案设计图,本餐馆建筑方案地形方整,考虑到建筑面积较大,所以平面设计的较为方整,主要是通过体块的高低错落来丰富建筑的立体效果。供各位参考
某商业综合楼设计立面图
某商业综合楼设计立面图,内容详细,供各位参考
某商业综合楼总平面图
某商业综合楼总平面图,内容详细,供各位参考
某商业综合楼设计规划图
某商业综合楼设计规划图,内容详细,供各位参考
某综合楼工程规划设计图
某综合楼工程规划设计图,坐标系统为大新城建筑坐标系。图中高程系为1956年黄海高程。图中尺寸,标高,坐标均以米(m)为单位。各建筑物具体座标详各建筑物放线图。
某商业综合楼建筑设计图
某商业综合楼建筑设计图,内容详细,供各位参考
首页
上一页
下一页
尾页