首页
首页
建筑图纸
建筑规划图
建筑规划图
某农村住宅楼建筑施工图
人塑造环境,环境反之塑造人的行为心理,人们凭借自身的品位、修养,规划自己的生活蓝图。而伏雅的生活空间再次提高人们的生活文化品质。
某住宅楼工程建筑施工图
某住宅楼工程建筑施工图,包括一层平面图,二层平面图,三层平面图,屋顶平面图,供各位参考
某多层住宅楼建筑施工图
设计标高:一层室内地面相当于绝对标高根据现场实际定.层数与层高:共4层,其中一层高2.8m,二~四层高2.8m.油漆及防腐防腐油二道.防腐油二道.供各位参考
某住宅楼建筑施工图
某住宅楼建筑施工图,平面布置有创新,考虑了远期改造的可能性。平面利用充分,便于家具灵活布置。居室私密性好,卫生间,厨房面积适当,方便工艺布置。供各位参考
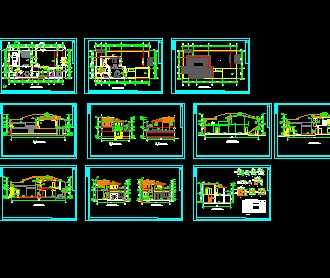
北方四合院建筑施工图(含效果)
北方四合院建筑施工图(含效果),包括一层平面图,二层平面图,屋顶平面图,立面图,剖面图,门窗详图等,供各位参考
120平米住宅及错层施工图(含效果)
二至七层住房建筑面积:4644平方米,平均每户建筑面积:129平方米。工程结构类型为全砖混结构;七度抗震设防;耐火等级为二级;屋面防水等级为Ⅲ级。设计使用年限为50年。
某小区住宅楼建筑施工图
某小区住宅楼建筑施工图,包括标准层平面图,七层平面图,一层平面图,六层平面图,立面图,屋顶平面图,阳台栏板大样等,供各位参考
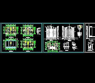
某住宅楼工程建筑结构图
3.电气安全采用TN-C-S接地保护系统,并与防雷保护共用接地装置,插座接地孔应与接地线可靠连接,等电位联结安装按照97SD567国标施工。供各位参考
某住宅楼建筑水电施工图
某住宅楼建筑水电施工图,包括标准层平面图,七层平面图,一层平面图,六层平面图,立面图,屋顶平面图,阳台板大样,楼梯六层平面图等,供各位参考
某小区住宅楼建筑施工图
3.电气安全采用TN-C-S接地保护系统,并与防雷保护共用接地装置,插座接地孔应与接地线可靠连接,等电位联结安装按照97SD567国标施工。供各位参考
12层小高层住宅楼建筑施工图(含效果)
12层小高层住宅楼建筑施工图(含效果),包括屋顶平面图,底层平面图,二层平面图,三至九层平面图,十层平面图,十一层平面图,跃层平面图等,供各位参考
某底商住宅楼建筑施工图
某底商住宅楼建筑施工图,包括图纸目录,门窗表,首层平面图,二层平面图,三层平面图,四--五层平面图,六层平面图,六层(跃层)平面图等,供各位参考
某住宅楼组合示意图
某住宅楼组合示意图,包括若干组合示意图,供各位参考
某综合住宅楼建筑施工图
某综合住宅楼建筑施工图,包括首层平面图,二层平面图,轴立面图,三层平面图,四层平面图等,供各位参考
某六层框架商住楼建筑施工图
建筑面积1570.31m2,工程设计等级为三级,耐火等级为二级、耐久年限50年。按国家地震区划丹巴地区地震基本烈度为7度,工程按7度抗震设防。供各位参考
某单元式多层住宅建筑施工图
包括建筑设计说明,三-六层平面图,飘窗剖面图,飘窗平面图,立面图,一层平面图,阁楼层平面图,露台栏杆详图,南阳台立面图,剖面图等,供各位参考
高层商务住宅方案设计图
构造找坡采用1:6水泥炉渣作找坡层,并捣实,表面平整,最薄处30mm。当屋面防水类型为保温屋面时,则采用保温材料垫坡,材料按工程设计。供各位参考
某高层住宅地下室疏散设计图
某高层住宅地下室疏散设计图,包括B1号楼地下一层修改平面,B2号楼地下一层修改平面,B1号楼地下二层人防平面,B2号楼地下二层人防平面,供各位参考
某高层住宅户型平面图
某高层住宅户型平面图,户型全面,包括不同种类的户型平面,供各位参考
某高层住宅户型组合平面图
某高层住宅户型组合平面图,供各位参考
首页
上一页
下一页
尾页